お気に入りを解除しました。
三木産業
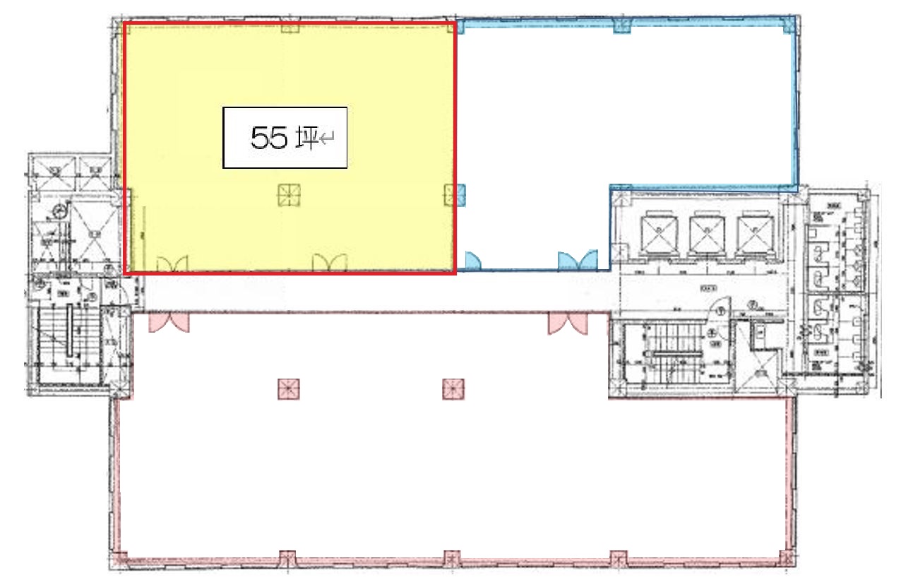
物件番号:B204307
8階55坪
- この物件の賃料の価格帯(共益費込)
- 坪@8,001円~@12,000円
| 物件名 | 三木産業 【このビルのその他の募集階】 |
||
|---|---|---|---|
| 住所 | 大阪府大阪市西区北堀江3丁目12番23号 阿波座でよく検索されるその他の物件 |
||
| 構造(規模) | 鉄骨鉄筋コンクリート造地上9階地下2階建 | ||
| 築年月 | 1974年4月30日 | ||
| 坪数 |
55坪 |
||
| 階数 | 8階 | ||
| 保証金 | |||
| 敷金 | 賃料の10カ月分 | ||
| 礼金 | - | ||
| 沿線 最寄駅 |
地下鉄長堀鶴見緑地線 西長堀駅 徒歩1分 (西長堀駅の賃貸事務所) 地下鉄千日前線 西長堀駅 徒歩1分 (西長堀駅の賃貸事務所) 地下鉄長堀鶴見緑地線 西大橋駅 徒歩8分 (西大橋駅の賃貸事務所) |
||
| アクセス | 大阪駅梅田駅まで電車17分 伊丹空港まで車27分 高速入口:環状線西長堀 |
||
| EV基数 | 3基 | 人荷EV基数 | - |
| 空調タイプ | 集中+個別 | ||
| 備考 | |||

西長堀、新なにわ筋沿いに位置する大型ビル。西長堀駅前、阪神高速西長堀入口もずぐでアクセス良好。
- お電話でお問い合わせ(無料)
-
平日13時までのお問い合わせで
当日に物件をご紹介!
お電話の場合「物件番号:B204307」
をお伝えください

