お気に入りを解除しました。
アステリオ北堀江
物件番号:B204166
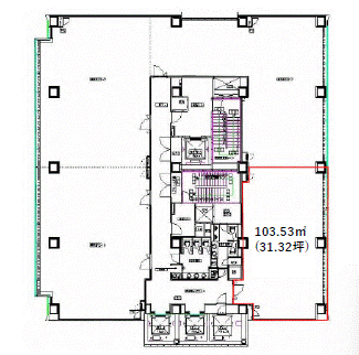
6階31.32坪

- この物件の賃料の価格帯(共益費込)
- 相談
| 物件名 | アステリオ北堀江 【このビルのその他の募集階】 |
||
|---|---|---|---|
| 住所 | 大阪府大阪市西区北堀江1丁目2番19号 四ツ橋でよく検索されるその他の物件 |
||
| 構造(規模) | 鉄骨・鉄骨鉄筋コンクリート造地上22階地下1階建 | ||
| 築年月 | 2009年2月1日 | ||
| 坪数 |
31.32坪 |
||
| 階数 | 6階 | ||
| 保証金 | |||
| 敷金 | 賃料の12カ月分 | ||
| 礼金 | - | ||
| 沿線 最寄駅 |
地下鉄四つ橋線 四ツ橋駅 徒歩1分 (四ツ橋駅の賃貸事務所) 地下鉄御堂筋線 心斎橋駅 徒歩3分 (心斎橋駅の賃貸事務所) 地下鉄長堀鶴見緑地線 西大橋駅 徒歩5分 (西大橋駅の賃貸事務所) |
||
| アクセス | 新大阪駅まで電車17分 大阪駅梅田駅まで電車11分 関西空港まで電車56分、車45分 伊丹空港まで車20分 高速入口:環状線四ツ橋・阿波座・湊町入口 |
||
| EV基数 | 3基 | 人荷EV基数 | 1基 |
| 空調タイプ | 個別 | ||
| 備考 | |||
四ツ橋筋沿いに面した四ツ橋駅直結の築浅物件です。
- お電話でお問い合わせ(無料)
-
平日13時までのお問い合わせで
当日に物件をご紹介!
お電話の場合「物件番号:B204166」
をお伝えください

