お気に入りを解除しました。
有限会社合田
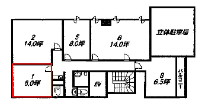
物件番号:B202209
8階8坪
- この物件の賃料の価格帯(共益費込)
- この部屋は成約済みです
| 物件名 | 有限会社合田 【このビルのその他の募集階】 |
||
|---|---|---|---|
| 住所 | 大阪府大阪市西区立売堀2丁目5番41号 肥後橋・本町でよく検索されるその他の物件 |
||
| 構造(規模) | 鉄骨造地上8階建 | ||
| 築年月 | 1990年7月1日 | ||
| 坪数 |
8坪 |
||
| 階数 | 8階 | ||
| 保証金 | - | ||
| 敷金 | - | ||
| 礼金 | - | ||
| 沿線 最寄駅 |
地下鉄四つ橋線 本町駅 徒歩7分 (本町駅の賃貸事務所) 地下鉄中央線 阿波座駅 徒歩6分 (阿波座駅の賃貸事務所) 地下鉄長堀鶴見緑地線 西大橋駅 徒歩6分 (西大橋駅の賃貸事務所) |
||
| アクセス | 新大阪駅まで電車20分 大阪駅梅田駅まで電車14分 関西空港まで電車60分、車45分 伊丹空港まで車20分 高速入口:環状線信濃橋・阿波座・西長堀入口 |
||
| EV基数 | 1基 | 人荷EV基数 | - |
| 空調タイプ | 個別 | ||
| 備考 | |||
- お電話でお問い合わせ(無料)
-
平日13時までのお問い合わせで
当日に物件をご紹介!
お電話の場合「物件番号:B202209」
をお伝えください
