お気に入りを解除しました。
NANKAI西本町(旧いちご西本町)
物件番号:B201202
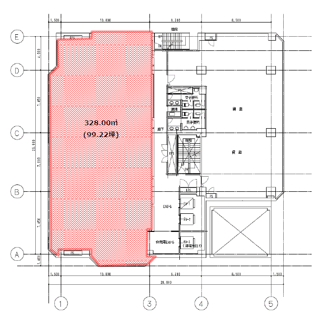
3階99.22坪

- この物件の賃料の価格帯(共益費込)
- 相談
| 物件名 | NANKAI西本町(旧いちご西本町) 【このビルのその他の募集階】 |
||
|---|---|---|---|
| 住所 | 大阪府大阪市西区阿波座2丁目2番18号 肥後橋・本町でよく検索されるその他の物件 |
||
| 構造(規模) | 鉄骨鉄筋コンクリート造地上14階建 | ||
| 築年月 | 1990年10月1日 | ||
| 坪数 |
99.22坪 |
||
| 階数 | 3階 | ||
| 保証金 | |||
| 敷金 | 相談 | ||
| 礼金 | - | ||
| 沿線 最寄駅 |
地下鉄四つ橋線 本町駅 徒歩5分 (本町駅の賃貸事務所) 地下鉄千日前線 阿波座駅 徒歩3分 (阿波座駅の賃貸事務所) 地下鉄御堂筋線 本町駅 徒歩6分 (本町駅の賃貸事務所) |
||
| アクセス | 新大阪駅まで電車20分 大阪駅梅田駅まで電車14分 関西空港まで電車57分、車45分 伊丹空港まで車20分 高速入口:環状線信濃橋・阿波座入口 |
||
| EV基数 | 2基 | 人荷EV基数 | 1基 |
| 空調タイプ | 集中 | ||
| 備考 | |||

中央大通りの落ち着いたビル。上層階だと大阪のオフィス街の眺望が広がります。
- お電話でお問い合わせ(無料)
-
平日13時までのお問い合わせで
当日に物件をご紹介!
お電話の場合「物件番号:B201202」
をお伝えください

