お気に入りを解除しました。
野村不動産四ツ橋
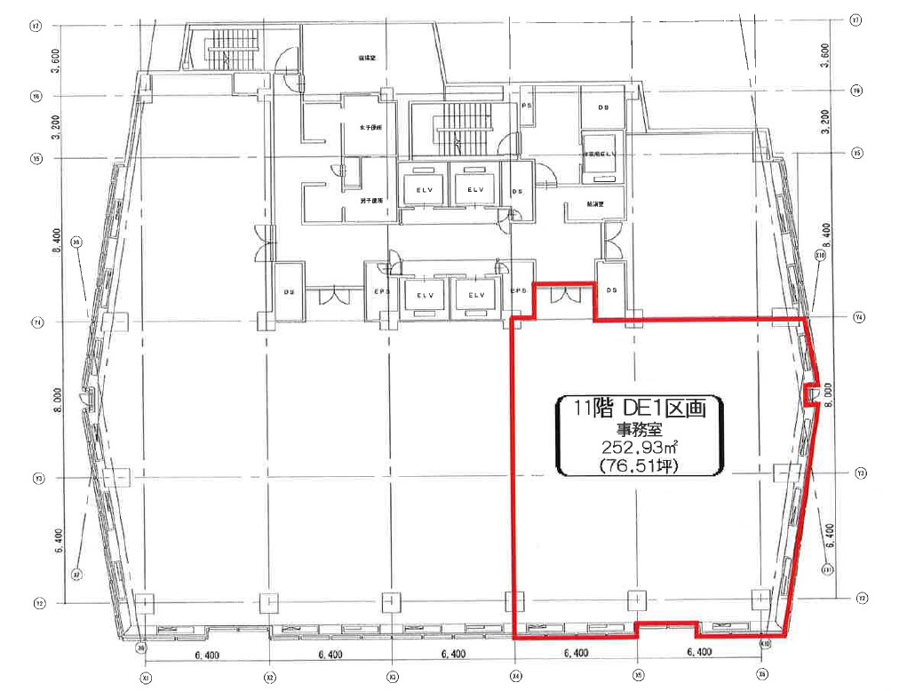
物件番号:B201107
11階76.51坪

- この物件の賃料の価格帯(共益費込)
- この部屋は成約済みです
| 物件名 | 野村不動産四ツ橋 【このビルのその他の募集階】 |
||
|---|---|---|---|
| 住所 | 大阪府大阪市西区阿波座1丁目4番4号 肥後橋・本町でよく検索されるその他の物件 |
||
| 構造(規模) | 鉄骨・鉄骨鉄筋コンクリート造地上15階地下2階建 | ||
| 築年月 | 1991年11月1日 | ||
| 坪数 |
76.51坪 |
||
| 階数 | 11階 | ||
| 保証金 | - | ||
| 敷金 | - | ||
| 礼金 | - | ||
| 沿線 最寄駅 |
地下鉄四つ橋線 本町駅 徒歩2分 (本町駅の賃貸事務所) 地下鉄中央線 本町駅 徒歩3分 (本町駅の賃貸事務所) 地下鉄御堂筋線 本町駅 徒歩4分 (本町駅の賃貸事務所) |
||
| アクセス | 新大阪駅まで電車15分 大阪駅梅田駅まで電車9分 関西空港まで電車53分、車45分 伊丹空港まで車20分 高速入口:環状線信濃橋・阿波座入口 |
||
| EV基数 | 4基 | 人荷EV基数 | 1基 |
| 空調タイプ | 集中+個別 | ||
| 備考 | ・駅近 ・大通り沿い ・角ビル |
||

野村不動産四ツ橋ビルは、一流企業が集中するビジネスの中心地に位置しています。四ツ橋筋に面した大型のオフィスビルで、角地にあるため視認性も優れています。新耐震基準のビルで、エレベーターは5基ございます。
- お電話でお問い合わせ(無料)
-
平日13時までのお問い合わせで
当日に物件をご紹介!
お電話の場合「物件番号:B201107」
をお伝えください

