お気に入りを解除しました。
CE西本町
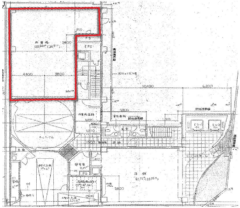
物件番号:B105128
1階36.51坪
- この物件の賃料の価格帯(共益費込)
- この部屋は成約済みです
| 物件名 | CE西本町 【このビルのその他の募集階】 |
||
|---|---|---|---|
| 住所 | 大阪府大阪市西区西本町1丁目7番7号 肥後橋・本町でよく検索されるその他の物件 |
||
| 構造(規模) | 鉄骨鉄筋コンクリート造地上10階地下1階建 | ||
| 築年月 | 1989年11月1日 | ||
| 坪数 |
36.51坪 |
||
| 階数 | 1階 | ||
| 保証金 | - | ||
| 敷金 | - | ||
| 礼金 | - | ||
| 沿線 最寄駅 |
地下鉄四つ橋線 本町駅 徒歩1分 (本町駅の賃貸事務所) 地下鉄御堂筋線 本町駅 徒歩4分 (本町駅の賃貸事務所) 地下鉄中央線 本町駅 徒歩3分 (本町駅の賃貸事務所) |
||
| アクセス | 新大阪駅まで電車14分 大阪駅梅田駅まで電車8分 関西空港まで電車55分、車45分 伊丹空港まで車20分 高速入口:環状線 信濃橋・阿波座 入口 |
||
| EV基数 | 2基 | 人荷EV基数 | - |
| 空調タイプ | 個別 | ||
| 備考 | |||

大手オーナー所有の大型の角ビル。
アーチのかかった外観が特徴的な新耐震基準適合の美築ビル。
大通りの交差点に位置した好立地で御堂筋線【本町駅】からも徒歩圏内。
窓面も多く解放感のある貸室です。
- お電話でお問い合わせ(無料)
-
平日13時までのお問い合わせで
当日に物件をご紹介!
お電話の場合「物件番号:B105128」
をお伝えください
