お気に入りを解除しました。
大阪建大
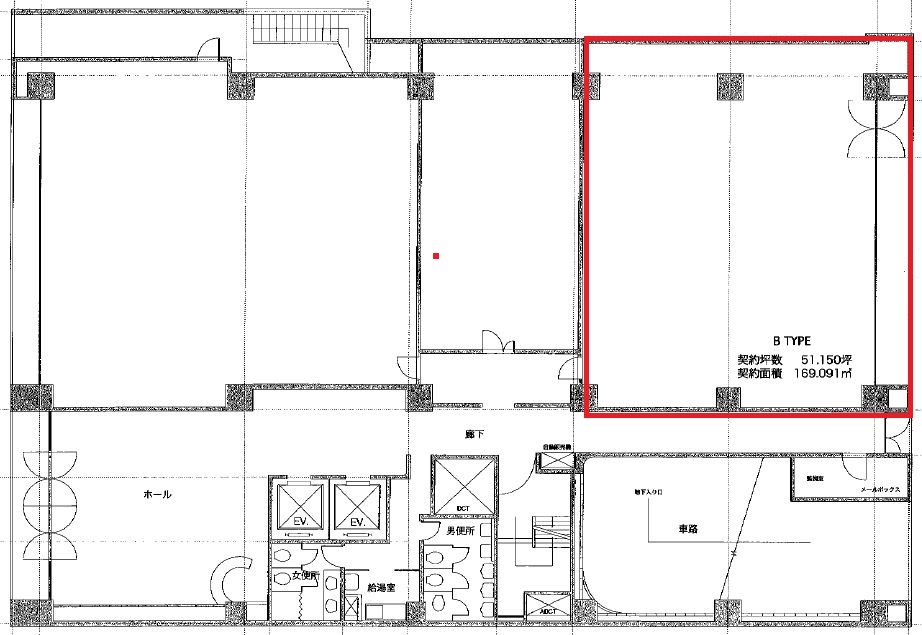
物件番号:B105109
1階51.15坪

- この物件の賃料の価格帯(共益費込)
- この部屋は成約済みです
| 物件名 | 大阪建大 【このビルのその他の募集階】 |
||
|---|---|---|---|
| 住所 | 大阪府大阪市西区西本町1丁目3番15号 本町・堺筋本町・肥後橋・本町でよく検索されるその他の物件 |
||
| 構造(規模) | 鉄骨鉄筋コンクリート造地上10階地下1階建 | ||
| 築年月 | 1977年1月1日 | ||
| 坪数 |
51.15坪 |
||
| 階数 | 1階 | ||
| 保証金 | - | ||
| 敷金 | - | ||
| 礼金 | - | ||
| 沿線 最寄駅 |
地下鉄四つ橋線 本町駅 徒歩1分 (本町駅の賃貸事務所) 地下鉄御堂筋線 本町駅 徒歩2分 (本町駅の賃貸事務所) 地下鉄中央線 本町駅 徒歩2分 (本町駅の賃貸事務所) |
||
| アクセス | 新大阪駅まで電車17分 大阪駅梅田駅まで電車12分 関西空港まで電車50分、車60分 伊丹空港まで車20分 高速入口:環状線信濃橋・阿波座 |
||
| EV基数 | 2基 | 人荷EV基数 | - |
| 空調タイプ | 個別 | ||
| 備考 | |||

四ツ橋筋から少し入った大型ビル。各線本町駅至近でアクセス良好。
- お電話でお問い合わせ(無料)
-
平日13時までのお問い合わせで
当日に物件をご紹介!
お電話の場合「物件番号:B105109」
をお伝えください
