お気に入りを解除しました。
信濃橋三井
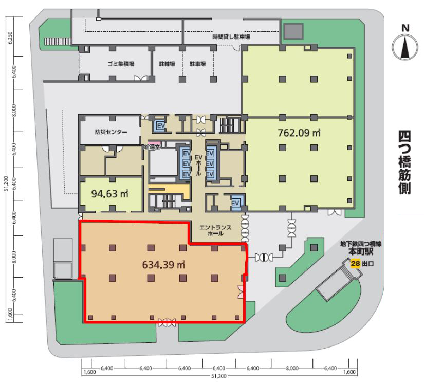
物件番号:B104130
1階28.62坪
- この物件の賃料の価格帯(共益費込)
- 坪@15,001円~@20,000円
| 物件名 | 信濃橋三井 【このビルのその他の募集階】 |
||
|---|---|---|---|
| 住所 | 大阪府大阪市西区靭本町1丁目11番7号 肥後橋・本町でよく検索されるその他の物件 |
||
| 構造(規模) | 鉄骨鉄筋コンクリート造地上12階地下2階建 | ||
| 築年月 | 1982年10月1日 | ||
| 坪数 |
28.62坪 |
||
| 階数 | 1階 | ||
| 保証金 | |||
| 敷金 | 賃料の12カ月分 | ||
| 礼金 | - | ||
| 沿線 最寄駅 |
地下鉄四つ橋線 本町駅 徒歩1分 (本町駅の賃貸事務所) 地下鉄中央線 本町駅 徒歩2分 (本町駅の賃貸事務所) 地下鉄御堂筋線 本町駅 徒歩3分 (本町駅の賃貸事務所) |
||
| アクセス | 新大阪駅まで電車14分 大阪駅梅田駅まで電車8分 関西空港まで電車52分、車40分 伊丹空港まで車20分 高速入口:環状線信濃橋・阿波座入口 |
||
| EV基数 | 6基 | 人荷EV基数 | 2基 |
| 空調タイプ | 個別 | ||
| 備考 | |||

多様なワークスタイルへの対応。情報インクラの充実。快適な環境をささえる三井不動産管理の物件です。
- お電話でお問い合わせ(無料)
-
平日13時までのお問い合わせで
当日に物件をご紹介!
お電話の場合「物件番号:B104130」
をお伝えください

