お気に入りを解除しました。
センチュリー
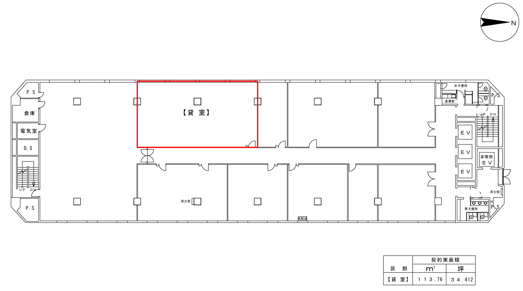
物件番号:B103114
6階34.412坪

- この物件の賃料の価格帯(共益費込)
- この部屋は成約済みです
| 物件名 | センチュリー 【このビルのその他の募集階】 |
||
|---|---|---|---|
| 住所 | 大阪府大阪市西区京町堀1丁目4番16号 肥後橋・本町でよく検索されるその他の物件 |
||
| 構造(規模) | 鉄骨鉄筋コンクリート造地上10階地下1階建 | ||
| 築年月 | 1973年8月1日 | ||
| 坪数 |
34.412坪 |
||
| 階数 | 6階 | ||
| 保証金 | - | ||
| 敷金 | - | ||
| 礼金 | - | ||
| 沿線 最寄駅 |
地下鉄四つ橋線 肥後橋駅 徒歩3分 (肥後橋駅の賃貸事務所) 地下鉄御堂筋線 淀屋橋駅 徒歩5分 (淀屋橋駅の賃貸事務所) 京阪線(本線・中之島線) 淀屋橋駅 徒歩6分 (淀屋橋駅の賃貸事務所) |
||
| アクセス | 新大阪駅まで電車15分 大阪駅梅田駅まで電車9分 関西空港まで電車58分、車40分 伊丹空港まで車20分 高速入口:環状線堂島・信濃橋入口 |
||
| EV基数 | 4基 | 人荷EV基数 | - |
| 空調タイプ | 個別 | ||
| 備考 | |||

センチュリービルは、四ツ橋筋に面した大型のオフィスビルです。重厚感のあるエントランスと外観をそなえた角ビルで、視認性が期待できます。1階にはコンビニやインテリアショップが入居中。
- お電話でお問い合わせ(無料)
-
平日13時までのお問い合わせで
当日に物件をご紹介!
お電話の場合「物件番号:B103114」
をお伝えください

