お気に入りを解除しました。
江戸堀フコク生命
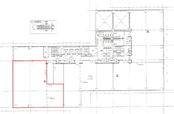
物件番号:B102211
7階86.57坪

- この物件の賃料の価格帯(共益費込)
- 坪@8,001円~@12,000円
| 物件名 | 江戸堀フコク生命 【このビルのその他の募集階】 |
||
|---|---|---|---|
| 住所 | 大阪府大阪市西区江戸堀2丁目6番33号 肥後橋・本町でよく検索されるその他の物件 |
||
| 構造(規模) | 鉄骨鉄筋コンクリート造地下1階地上10階建 | ||
| 築年月 | 1994年2月1日 | ||
| 坪数 |
86.57坪 |
||
| 階数 | 7階 | ||
| 保証金 | |||
| 敷金 | 賃料の12カ月分 | ||
| 礼金 | - | ||
| 沿線 最寄駅 |
地下鉄四つ橋線 肥後橋駅 徒歩8分 (肥後橋駅の賃貸事務所) 地下鉄四つ橋線 本町駅 徒歩8分 (本町駅の賃貸事務所) 地下鉄中央線 阿波座駅 徒歩10分 (阿波座駅の賃貸事務所) |
||
| アクセス | 新大阪駅まで電車23分 大阪駅梅田駅まで電車17分 関西空港まで電車62分、車40分 伊丹空港まで車20分 高速入口:環状線堂島・中之島・中之島西入口 |
||
| EV基数 | 3基 | 人荷EV基数 | 1基 |
| 空調タイプ | 集中 | ||
| 備考 | |||

土佐堀に面す設備の充実したガラス貼りのビル。公開空地が空間としての憩いを演出しています。
- お電話でお問い合わせ(無料)
-
平日13時までのお問い合わせで
当日に物件をご紹介!
お電話の場合「物件番号:B102211」
をお伝えください
