お気に入りを解除しました。
AM
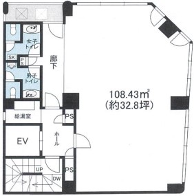
物件番号:B102203
9階32.8坪

- この物件の賃料の価格帯(共益費込)
- 坪@3,000円~@8,000円
| 物件名 | AM 【このビルのその他の募集階】 |
||
|---|---|---|---|
| 住所 | 大阪府大阪市西区江戸堀2丁目3番1号 肥後橋・本町でよく検索されるその他の物件 |
||
| 構造(規模) | 鉄骨鉄筋コンクリート造地上10階建 | ||
| 築年月 | 1989年8月1日 | ||
| 坪数 |
32.8坪 |
||
| 階数 | 9階 | ||
| 保証金 | |||
| 敷金 | 賃料の2カ月分 | ||
| 礼金 | 賃料の2カ月分 | ||
| 沿線 最寄駅 |
地下鉄四つ橋線 肥後橋駅 徒歩7分 (肥後橋駅の賃貸事務所) 地下鉄御堂筋線 淀屋橋駅 徒歩8分 (淀屋橋駅の賃貸事務所) 地下鉄四つ橋線 本町駅 徒歩9分 (本町駅の賃貸事務所) |
||
| アクセス | 新大阪駅まで電車21分 大阪駅梅田駅まで電車15分 関西空港まで電車61分、車40分 伊丹空港まで車20分 高速入口:環状線堂島・中之島・中之島西入口 |
||
| EV基数 | 1基 | 人荷EV基数 | - |
| 空調タイプ | 個別 | ||
| 備考 | |||
- お電話でお問い合わせ(無料)
-
平日13時までのお問い合わせで
当日に物件をご紹介!
お電話の場合「物件番号:B102203」
をお伝えください
