お気に入りを解除しました。
三共肥後橋
物件番号:B1021105
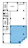
2階41.35坪

- この物件の賃料の価格帯(共益費込)
- この部屋は成約済みです
| 物件名 | 三共肥後橋 【このビルのその他の募集階】 |
||
|---|---|---|---|
| 住所 | 大阪府大阪市西区江戸堀1丁目19番10号 肥後橋・本町でよく検索されるその他の物件 |
||
| 構造(規模) | 鉄骨鉄筋コンクリート造地上7階地下1階建 | ||
| 築年月 | 1990年3月1日 | ||
| 坪数 |
41.35坪 |
||
| 階数 | 2階 | ||
| 保証金 | - | ||
| 敷金 | - | ||
| 礼金 | - | ||
| 沿線 最寄駅 |
地下鉄四つ橋線 肥後橋駅 徒歩1分 (肥後橋駅の賃貸事務所) 京阪線(本線・中之島線) 淀屋橋駅 徒歩8分 (淀屋橋駅の賃貸事務所) 地下鉄御堂筋線 淀屋橋駅 徒歩7分 (淀屋橋駅の賃貸事務所) |
||
| アクセス | 新大阪駅まで電車15分 大阪駅梅田駅まで電車9分 関西空港まで電車56分、車40分 伊丹空港まで車20分 高速入口:環状線堂島・中之島入口 |
||
| EV基数 | 1基 | 人荷EV基数 | - |
| 空調タイプ | 個別 | ||
| 備考 | |||

全面ガラス貼りの美築ビル。角ビルの為、採光も良好。
- お電話でお問い合わせ(無料)
-
平日13時までのお問い合わせで
当日に物件をご紹介!
お電話の場合「物件番号:B1021105」
をお伝えください
