お気に入りを解除しました。
肥後橋ニッタイ
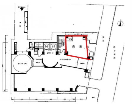
物件番号:B1021033
1階15.57坪

- この物件の賃料の価格帯(共益費込)
- この部屋は成約済みです
| 物件名 | 肥後橋ニッタイ 【このビルのその他の募集階】 |
||
|---|---|---|---|
| 住所 | 大阪府大阪市西区江戸堀1丁目10番2号 肥後橋・本町でよく検索されるその他の物件 |
||
| 構造(規模) | 鉄筋コンクリート造陸屋根地下1階付9階建 | ||
| 築年月 | 1993年2月28日 | ||
| 坪数 |
15.57坪 |
||
| 階数 | 1階 | ||
| 保証金 | - | ||
| 敷金 | - | ||
| 礼金 | - | ||
| 沿線 最寄駅 |
地下鉄四つ橋線 肥後橋駅 徒歩1分 (肥後橋駅の賃貸事務所) 京阪線(本線・中之島線) 淀屋橋駅 徒歩7分 (淀屋橋駅の賃貸事務所) 地下鉄御堂筋線 淀屋橋駅 徒歩6分 (淀屋橋駅の賃貸事務所) |
||
| アクセス | 新大阪駅まで電車15分 大阪駅梅田駅まで電車9分 関西空港まで電車56分、車45分 伊丹空港まで車20分 高速入口:環状線堂島・中之島入口 |
||
| EV基数 | 2基 | 人荷EV基数 | - |
| 空調タイプ | 個別 | ||
| 備考 | |||

肥後橋ニッタイビルは、平成5年竣工の新耐震基準のオフィスビルです。大通り(四ツ橋筋)に面して建っているので視認性があり、カーテンウォールのファサードがひときわクールな印象です。肥後橋駅から徒歩1分という優れた立地でアクセスも至便。
- お電話でお問い合わせ(無料)
-
平日13時までのお問い合わせで
当日に物件をご紹介!
お電話の場合「物件番号:B1021033」
をお伝えください
