お気に入りを解除しました。
肥後橋センター
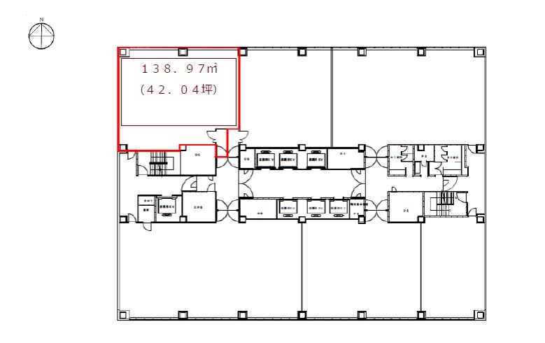
物件番号:B1021027
7階42.04坪

- この物件の賃料の価格帯(共益費込)
- この部屋は成約済みです
| 物件名 | 肥後橋センター 【このビルのその他の募集階】 |
||
|---|---|---|---|
| 住所 | 大阪府大阪市西区江戸堀1丁目9番1号 肥後橋・本町でよく検索されるその他の物件 |
||
| 構造(規模) | 鉄骨鉄筋コンクリート・鉄骨造地上19階地下2階建 | ||
| 築年月 | 1977年10月1日 | ||
| 坪数 |
42.04坪 |
||
| 階数 | 7階 | ||
| 保証金 | - | ||
| 敷金 | - | ||
| 礼金 | - | ||
| 沿線 最寄駅 |
地下鉄四つ橋線 肥後橋駅 徒歩1分 (肥後橋駅の賃貸事務所) 地下鉄御堂筋線 淀屋橋駅 徒歩6分 (淀屋橋駅の賃貸事務所) 京阪線(本線・中之島線) 淀屋橋駅 徒歩7分 (淀屋橋駅の賃貸事務所) |
||
| アクセス | 新大阪駅まで電車15分 大阪駅梅田駅まで電車9分 関西空港まで電車56分、車45分 伊丹空港まで車20分 高速入口:環状線堂島・中之島・中之島西入口 |
||
| EV基数 | 7基 | 人荷EV基数 | - |
| 空調タイプ | 集中+個別 | ||
| 備考 | |||

駅からのアクセスは良好。地下には飲食街があるランドマーク物件。近年大型リニューアルされハイセンスなオフィスビルです。
- お電話でお問い合わせ(無料)
-
平日13時までのお問い合わせで
当日に物件をご紹介!
お電話の場合「物件番号:B1021027」
をお伝えください

