お気に入りを解除しました。
JMFビル肥後橋01(旧肥後橋MID)
物件番号:B1021016
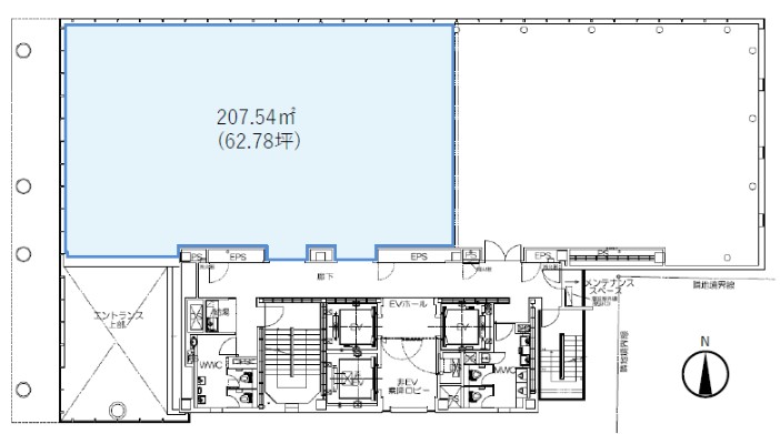
2階62.78坪

- この物件の賃料の価格帯(共益費込)
- この部屋は成約済みです
| 物件名 | JMFビル肥後橋01(旧肥後橋MID) 【このビルのその他の募集階】 |
||
|---|---|---|---|
| 住所 | 大阪府大阪市西区江戸堀1丁目5番16号 肥後橋・本町でよく検索されるその他の物件 |
||
| 構造(規模) | 鉄骨造地上11階地下1階建 | ||
| 築年月 | 2010年1月1日 | ||
| 坪数 |
62.78坪 |
||
| 階数 | 2階 | ||
| 保証金 | - | ||
| 敷金 | - | ||
| 礼金 | - | ||
| 沿線 最寄駅 |
地下鉄四つ橋線 肥後橋駅 徒歩1分 (肥後橋駅の賃貸事務所) 地下鉄御堂筋線 淀屋橋駅 徒歩5分 (淀屋橋駅の賃貸事務所) 京阪線(本線・中之島線) 淀屋橋駅 徒歩5分 (淀屋橋駅の賃貸事務所) |
||
| アクセス | 新大阪駅まで電車14分 大阪駅梅田駅まで電車8分 関西空港まで電車56分、車45分 伊丹空港まで車20分 高速入口:環状線堂島・中之島入口 |
||
| EV基数 | 3基 | 人荷EV基数 | - |
| 空調タイプ | 個別 | ||
| 備考 | |||

洗練されたフォルム、駅近・築浅のハイグレードオフィス。
- お電話でお問い合わせ(無料)
-
平日13時までのお問い合わせで
当日に物件をご紹介!
お電話の場合「物件番号:B1021016」
をお伝えください

