お気に入りを解除しました。
金鳥土佐堀
物件番号:B101113
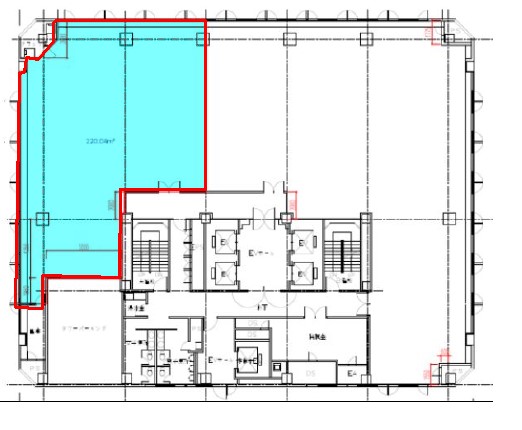
3階66.56坪

- この物件の賃料の価格帯(共益費込)
- この部屋は成約済みです
| 物件名 | 金鳥土佐堀 【このビルのその他の募集階】 |
||
|---|---|---|---|
| 住所 | 大阪府大阪市西区土佐堀1丁目4番11号 肥後橋・本町でよく検索されるその他の物件 |
||
| 構造(規模) | 鉄骨鉄筋コンクリート造地上14階地下2階建 | ||
| 築年月 | 1988年11月1日 | ||
| 坪数 |
66.56坪 |
||
| 階数 | 3階 | ||
| 保証金 | - | ||
| 敷金 | - | ||
| 礼金 | - | ||
| 沿線 最寄駅 |
地下鉄四つ橋線 肥後橋駅 徒歩4分 (肥後橋駅の賃貸事務所) 京阪線(本線・中之島線) 渡辺橋駅 徒歩6分 (渡辺橋駅の賃貸事務所) 地下鉄御堂筋線 淀屋橋駅 徒歩11分 (淀屋橋駅の賃貸事務所) |
||
| アクセス | 新大阪駅まで電車18分 大阪駅梅田駅まで電車12分 関西空港まで電車55分、車45分 伊丹空港まで車20分 高速入口:環状線堂島・中之島入口 |
||
| EV基数 | 4基 | 人荷EV基数 | 1基 |
| 空調タイプ | 個別 | ||
| 備考 | 土佐堀通り沿いの大型ビルです。清潔感のある広いエントランスと管理の行き届いた共用部です。防災センターには管理人が常駐しております。2016年空調入替えで個別空調になりました。 | ||

高いグレードを誇る物件です。四ツ橋線、京阪中之島線も使え非常に人気ある美築物件です。
- お電話でお問い合わせ(無料)
-
平日13時までのお問い合わせで
当日に物件をご紹介!
お電話の場合「物件番号:B101113」
をお伝えください

