お気に入りを解除しました。
プライムスクエア心斎橋
物件番号:A502204
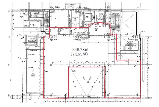
13階74.65坪

- この物件の賃料の価格帯(共益費込)
- この部屋は成約済みです
| 物件名 | プライムスクエア心斎橋 【このビルのその他の募集階】 |
||
|---|---|---|---|
| 住所 | 大阪府大阪市中央区心斎橋筋2丁目7番18号 心斎橋・長堀橋でよく検索されるその他の物件 |
||
| 構造(規模) | 鉄骨造地上13階地下2階建 | ||
| 築年月 | 2007年4月1日 | ||
| 坪数 |
74.65坪 |
||
| 階数 | 13階 | ||
| 保証金 | - | ||
| 敷金 | - | ||
| 礼金 | - | ||
| 沿線 最寄駅 |
地下鉄御堂筋線 心斎橋駅 徒歩4分 (心斎橋駅の賃貸事務所) 地下鉄御堂筋線 なんば駅 徒歩6分 (なんば駅の賃貸事務所) 地下鉄長堀鶴見緑地線 心斎橋駅 徒歩4分 (心斎橋駅の賃貸事務所) |
||
| アクセス | 新大阪駅まで電車18分 大阪駅梅田駅まで電車12分 関西空港まで電車49分、車45分 伊丹空港まで車20分 高速入口:環状線四ツ橋・湊町入口 |
||
| EV基数 | 5基 | 人荷EV基数 | - |
| 空調タイプ | 個別 | ||
| 備考 | |||

御堂筋沿い築浅ハイグレードビルです。1Fには有名ブランドが入居!!
- お電話でお問い合わせ(無料)
-
平日13時までのお問い合わせで
当日に物件をご紹介!
お電話の場合「物件番号:A502204」
をお伝えください

