お気に入りを解除しました。
難波日興
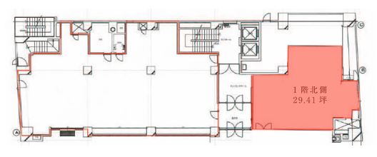
物件番号:A501206
1階29.41坪
- この物件の賃料の価格帯(共益費込)
- この部屋は成約済みです
| 物件名 | 難波日興 【このビルのその他の募集階】 |
||
|---|---|---|---|
| 住所 | 大阪府大阪市中央区西心斎橋2丁目4番2号 心斎橋・長堀橋・なんば・日本橋・四ツ橋でよく検索されるその他の物件 |
||
| 構造(規模) | 鉄骨鉄筋コンクリート造地上9階地下1階建 | ||
| 築年月 | 1982年4月1日 | ||
| 坪数 |
29.41坪 |
||
| 階数 | 1階 | ||
| 保証金 | - | ||
| 敷金 | - | ||
| 礼金 | - | ||
| 沿線 最寄駅 |
地下鉄御堂筋線 なんば駅 徒歩5分 (なんば駅の賃貸事務所) 地下鉄御堂筋線 心斎橋駅 徒歩6分 (心斎橋駅の賃貸事務所) 近鉄線 大阪難波駅 徒歩5分 (大阪難波駅の賃貸事務所) |
||
| アクセス | 新大阪駅まで電車18分 大阪駅梅田駅まで電車12分 関西空港まで電車50分、車45分 伊丹空港まで車20分 高速入口:環状線四ツ橋・湊町入口 |
||
| EV基数 | 2基 | 人荷EV基数 | - |
| 空調タイプ | 集中 | ||
| 備考 | |||

御堂筋沿いに面したイニシャルコスト・ランニングコスト共に格安の物件です。空中店舗も可能。視認性も良好です。更に共用部リノベーション工事も完了してます。
- お電話でお問い合わせ(無料)
-
平日13時までのお問い合わせで
当日に物件をご紹介!
お電話の場合「物件番号:A501206」
をお伝えください
類似物件のご紹介
KOKO HOTEL 大阪千日前なんば(アネックス)
-
-
住所 大阪府大阪市中央区千日前1丁目3番5号 交通 地下鉄千日前線 日本橋駅 徒歩2分
地下鉄堺筋線 日本橋駅 徒歩2分
地下鉄御堂筋線 なんば駅 徒歩5分
竣工 2025年2月 構造 鉄骨造地上15階建
心斎橋・長堀橋エリアの
貸し事務所、賃貸オフィス一覧を見る>>
