お気に入りを解除しました。
御堂筋
物件番号:A501105
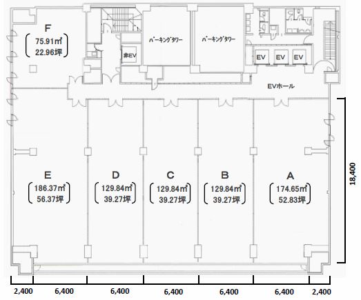
8階56.37坪
- この物件の賃料の価格帯(共益費込)
- この部屋は成約済みです
| 物件名 | 御堂筋 【このビルのその他の募集階】 |
||
|---|---|---|---|
| 住所 | 大阪府大阪市中央区西心斎橋1丁目4番5号 心斎橋・長堀橋・四ツ橋でよく検索されるその他の物件 |
||
| 構造(規模) | 鉄骨鉄筋コンクリート造地上12階地下1階建 | ||
| 築年月 | 1979年10月 | ||
| 坪数 |
56.37坪 |
||
| 階数 | 8階 | ||
| 保証金 | - | ||
| 敷金 | - | ||
| 礼金 | - | ||
| 沿線 最寄駅 |
地下鉄御堂筋線 心斎橋駅 徒歩1分 (心斎橋駅の賃貸事務所) 地下鉄長堀鶴見緑地線 心斎橋駅 徒歩1分 (心斎橋駅の賃貸事務所) 地下鉄四つ橋線 四ツ橋駅 徒歩5分 (四ツ橋駅の賃貸事務所) |
||
| アクセス | 新大阪駅まで電車14分 大阪駅梅田駅まで電車8分 関西空港まで電車46分、車45分 伊丹空港まで車20分 高速入口:環状線四ツ橋・湊町入口 |
||
| EV基数 | 3基 | 人荷EV基数 | - |
| 空調タイプ | 集中 | ||
| 備考 | |||

心斎橋のランドマークビル。御堂筋に面し、視認性抜群の好立地。耐震補強はもちろん共用部エントランスもリノベーション済みの大型ビルです。
- お電話でお問い合わせ(無料)
-
平日13時までのお問い合わせで
当日に物件をご紹介!
お電話の場合「物件番号:A501105」
をお伝えください
