お気に入りを解除しました。
松下IMP
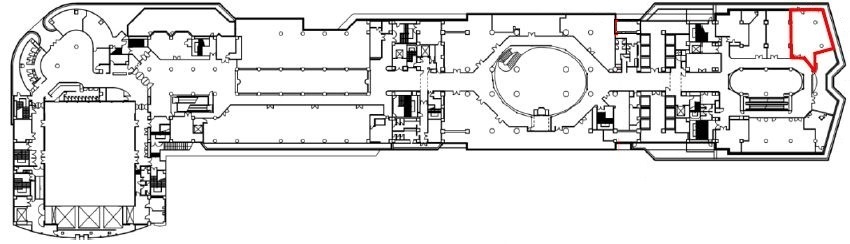
物件番号:A321101
2階36.52坪
- この物件の賃料の価格帯(共益費込)
- この部屋は成約済みです
| 物件名 | 松下IMP 【このビルのその他の募集階】 続きを表示 ▼ |
||
|---|---|---|---|
| 住所 | 大阪府大阪市中央区城見1丁目3番7号 OBP・京橋・ 森之宮でよく検索されるその他の物件 |
||
| 構造(規模) | 鉄骨鉄筋コンクリート・鉄骨造地上26階地下2階建 | ||
| 築年月 | 1990年2月3日 | ||
| 坪数 |
36.52坪 |
||
| 階数 | 2階 | ||
| 保証金 | - | ||
| 敷金 | - | ||
| 礼金 | - | ||
| 沿線 最寄駅 |
地下鉄長堀鶴見緑地線 大阪ビジネスパーク駅 徒歩1分 (大阪ビジネスパーク駅の賃貸事務所) JR東西線 大阪城北詰駅 徒歩5分 (大阪城北詰駅の賃貸事務所) JR大阪環状線 京橋駅 徒歩10分 (京橋駅の賃貸事務所) |
||
| アクセス | 新大阪駅まで電車18分 大阪駅梅田駅まで電車12分 関西空港まで電車57分、車45分 伊丹空港まで車22分 高速入口:環状線森之宮入口 |
||
| EV基数 | 12基 | 人荷EV基数 | 2基 |
| 空調タイプ | 集中+個別 | ||
| 備考 | ・駅近 ・大通り沿い ・新耐震基準適合 ・貸会議室 ・喫煙スペース ・ATMコーナー ・大型荷捌き場 ・ツイン21と直結 |
||

ショップやホールを抱えたOBPを代表する複合施設ビル。2階にある多目的ホールは857席のシートが有りコンサートやセミナー等に利用して頂けます。
- お電話でお問い合わせ(無料)
-
平日13時までのお問い合わせで
当日に物件をご紹介!
お電話の場合「物件番号:A321101」
をお伝えください
