お気に入りを解除しました。
中央大通FN
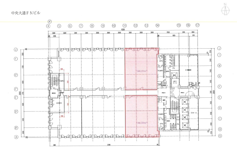
物件番号:A317109
16階43.56坪

- この物件の賃料の価格帯(共益費込)
- この部屋は成約済みです
| 物件名 | 中央大通FN 【このビルのその他の募集階】 |
||
|---|---|---|---|
| 住所 | 大阪府大阪市中央区常盤町1丁目3番8号 天満橋・谷町でよく検索されるその他の物件 |
||
| 構造(規模) | 鉄骨・鉄骨鉄筋コンクリート造地上24階地下1階塔屋1階建 | ||
| 築年月 | 1997年8月1日 | ||
| 坪数 |
43.56坪 |
||
| 階数 | 16階 | ||
| 保証金 | - | ||
| 敷金 | - | ||
| 礼金 | - | ||
| 沿線 最寄駅 |
地下鉄谷町線 谷町四丁目駅 徒歩3分 (谷町四丁目駅の賃貸事務所) 地下鉄中央線 谷町四丁目駅 徒歩3分 (谷町四丁目駅の賃貸事務所) 地下鉄堺筋線 堺筋本町駅 徒歩8分 (堺筋本町駅の賃貸事務所) |
||
| アクセス | 新大阪駅まで電車17分 大阪駅梅田駅まで電車11分 関西空港まで電車57分、車45分 伊丹空港まで車20分 高速入口:環状線高麗橋・法円坂・長堀 |
||
| EV基数 | 9基 | 人荷EV基数 | - |
| 空調タイプ | 個別 | ||
| 備考 | |||

中央大通り沿い。このエリア最大級のハイグレードランドマークビル。特徴的なデザインが大変魅力的です。
- お電話でお問い合わせ(無料)
-
平日13時までのお問い合わせで
当日に物件をご紹介!
お電話の場合「物件番号:A317109」
をお伝えください

