お気に入りを解除しました。
日本生命御堂筋
物件番号:A205462
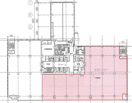
3階283.76坪

- この物件の賃料の価格帯(共益費込)
- この部屋は成約済みです
| 物件名 | 日本生命御堂筋 【このビルのその他の募集階】 |
||
|---|---|---|---|
| 住所 | 大阪府大阪市中央区南船場4丁目2番4号 心斎橋・長堀橋でよく検索されるその他の物件 |
||
| 構造(規模) | 鉄骨鉄筋コンクリート造地上12階地下2階建 | ||
| 築年月 | 1979年9月1日 | ||
| 坪数 |
283.76坪 |
||
| 階数 | 3階 | ||
| 保証金 | - | ||
| 敷金 | - | ||
| 礼金 | - | ||
| 沿線 最寄駅 |
地下鉄御堂筋線 心斎橋駅 徒歩2分 (心斎橋駅の賃貸事務所) 地下鉄長堀鶴見緑地線 心斎橋駅 徒歩2分 (心斎橋駅の賃貸事務所) 地下鉄四つ橋線 四ツ橋駅 徒歩6分 (四ツ橋駅の賃貸事務所) |
||
| アクセス | 新大阪駅まで電車16分 大阪駅梅田駅まで電車10分 関西空港まで電車50分、車45分 伊丹空港まで車25分 高速入口:環状線信濃橋・阿波座 |
||
| EV基数 | 8基 | 人荷EV基数 | - |
| 空調タイプ | |||
| 備考 | |||

大阪メトロ御堂筋線「心斎橋駅」徒歩2分、御堂筋沿いワンフロア450坪の大型ビルです。竹中工務店による施工でしっかりした造りになっています。主なスペックは、8基のエレベータ、ゾーン毎の個別空調や男女別トイレなどです。セキュリテイ面は機械警備に対応しています。またビル内にハートンホール(貸会議室)が入居中です。
- お電話でお問い合わせ(無料)
-
平日13時までのお問い合わせで
当日に物件をご紹介!
お電話の場合「物件番号:A205462」
をお伝えください
