お気に入りを解除しました。
AOI
物件番号:A205422
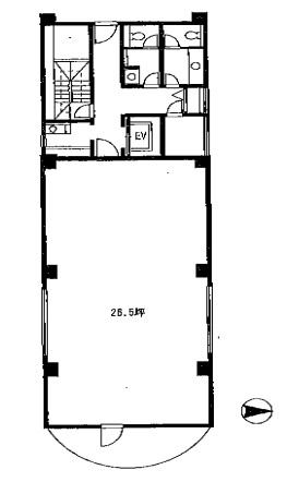
5階26.5坪

- この物件の賃料の価格帯(共益費込)
- この部屋は成約済みです
| 物件名 | AOI 【このビルのその他の募集階】 |
||
|---|---|---|---|
| 住所 | 大阪府大阪市中央区南船場4丁目7番5号 心斎橋・長堀橋でよく検索されるその他の物件 |
||
| 構造(規模) | 鉄筋コンクリート造地上9階建 | ||
| 築年月 | 1987年8月1日 | ||
| 坪数 |
26.5坪 |
||
| 階数 | 5階 | ||
| 保証金 | - | ||
| 敷金 | - | ||
| 礼金 | - | ||
| 沿線 最寄駅 |
地下鉄御堂筋線 心斎橋駅 徒歩3分 (心斎橋駅の賃貸事務所) 地下鉄長堀鶴見緑地線 心斎橋駅 徒歩3分 (心斎橋駅の賃貸事務所) 地下鉄四つ橋線 四ツ橋駅 徒歩4分 (四ツ橋駅の賃貸事務所) |
||
| アクセス | 新大阪駅まで電車17分 大阪駅梅田駅まで電車11分 関西空港まで電車51分、車47分 伊丹空港まで車25分 高速入口:環状線信濃橋・阿波座・長堀 入口 |
||
| EV基数 | 1基 | 人荷EV基数 | - |
| 空調タイプ | 個別 | ||
| 備考 | |||

御堂筋か東に1本入った落ち着いた周辺環境にあるコンパクトビル。センターコアの1フロア2テナントビル。外観も共用部も白で統一され、共用部も管理が行き届いており、清潔感に溢れています。貸室は約25坪と約10坪台の2パターンになります。
- お電話でお問い合わせ(無料)
-
平日13時までのお問い合わせで
当日に物件をご紹介!
お電話の場合「物件番号:A205422」
をお伝えください
