お気に入りを解除しました。
心斎橋MS
物件番号:A205420
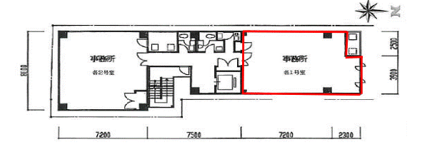
8階17.48坪

- この物件の賃料の価格帯(共益費込)
- 坪@8,001円~@12,000円
| 物件名 | 心斎橋MS 【このビルのその他の募集階】 |
||
|---|---|---|---|
| 住所 | 大阪府大阪市中央区南船場4丁目6番22号 心斎橋・長堀橋でよく検索されるその他の物件 |
||
| 構造(規模) | 鉄骨造地上8階建 | ||
| 築年月 | 1997年9月1日 | ||
| 坪数 |
17.48坪 |
||
| 階数 | 8階 | ||
| 保証金 | |||
| 敷金 | 賃料の10カ月分 | ||
| 礼金 | - | ||
| 沿線 最寄駅 |
地下鉄御堂筋線 心斎橋駅 徒歩2分 (心斎橋駅の賃貸事務所) 地下鉄長堀鶴見緑地線 心斎橋駅 徒歩2分 (心斎橋駅の賃貸事務所) 地下鉄四つ橋線 四ツ橋駅 徒歩3分 (四ツ橋駅の賃貸事務所) |
||
| アクセス | 新大阪駅まで電車16分 大阪駅梅田駅まで電車10分 関西空港まで電車50分、車45分 伊丹空港まで車25分 高速入口:環状線信濃橋・阿波座・長堀 入口 |
||
| EV基数 | 1基 | 人荷EV基数 | - |
| 空調タイプ | 個別 | ||
| 備考 | |||

御堂筋と阪神高速の間に位置しするコンパクトビル。センターコアの1フロア2テナント仕様。自転車置き場も整備されており営業の足回りには大変便利です。どの部屋も約17坪なのでスタートアップはもちろん、立地改善や増員に伴う初移転の企業様にオススメです。
- お電話でお問い合わせ(無料)
-
平日13時までのお問い合わせで
当日に物件をご紹介!
お電話の場合「物件番号:A205420」
をお伝えください
