お気に入りを解除しました。
心斎橋MIDO
物件番号:A205314
8階38.33坪

- この物件の賃料の価格帯(共益費込)
- 坪@8,001円~@12,000円
| 物件名 | 心斎橋MIDO 【このビルのその他の募集階】 |
||
|---|---|---|---|
| 住所 | 大阪府大阪市中央区南船場3丁目2番29号 心斎橋・長堀橋でよく検索されるその他の物件 |
||
| 構造(規模) | 鉄骨造地上9階建 | ||
| 築年月 | 1990年3月1日 | ||
| 坪数 |
38.33坪 |
||
| 階数 | 8階 | ||
| 保証金 | |||
| 敷金 | 賃料の5カ月分 | ||
| 礼金 | - | ||
| 沿線 最寄駅 |
地下鉄御堂筋線 心斎橋駅 徒歩4分 (心斎橋駅の賃貸事務所) 地下鉄長堀鶴見緑地線 心斎橋駅 徒歩4分 (心斎橋駅の賃貸事務所) 地下鉄堺筋線 長堀橋駅 徒歩5分 (長堀橋駅の賃貸事務所) |
||
| アクセス | 新大阪駅まで電車16分 大阪駅梅田駅まで電車10分 関西空港まで電車50分、車48分 伊丹空港まで車25分 高速入口:環状線信濃橋・阿波座・長堀 入口 |
||
| EV基数 | 1基 | 人荷EV基数 | - |
| 空調タイプ | 個別 | ||
| 備考 | |||

大阪メトロ御堂筋線「心斎橋駅」徒歩4分の立地に位置するビル。ガラス張りの外観が特徴的なビルです。
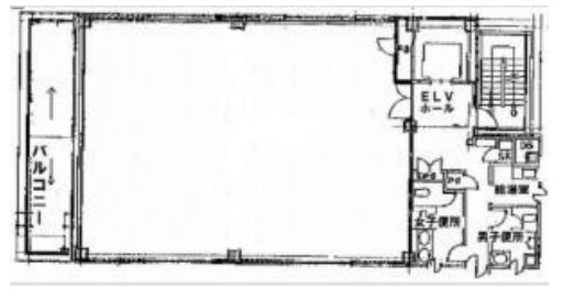
ワンフロアーワンテナントで使いやすい長方形の間取りになっていますので、様々なレイアウトに対応可能です。また、空中店舗としての使用も相談可能。業種についてはご相談ください。
- お電話でお問い合わせ(無料)
-
平日13時までのお問い合わせで
当日に物件をご紹介!
お電話の場合「物件番号:A205314」
をお伝えください
