お気に入りを解除しました。
ルグラン心斎橋
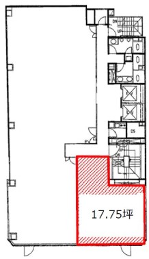
物件番号:A205267
3階17.75坪

- この物件の賃料の価格帯(共益費込)
- 坪@12,001円~@15,000円
| 物件名 | ルグラン心斎橋 【このビルのその他の募集階】 |
||
|---|---|---|---|
| 住所 | 大阪府大阪市中央区南船場2丁目12番16号 心斎橋・長堀橋でよく検索されるその他の物件 |
||
| 構造(規模) | 鉄骨造地上9階地下1階建 | ||
| 築年月 | 1990年1月31日 | ||
| 坪数 |
17.75坪 |
||
| 階数 | 3階 | ||
| 保証金 | |||
| 敷金 | 賃料の10カ月分 | ||
| 礼金 | - | ||
| 沿線 最寄駅 |
地下鉄御堂筋線 心斎橋駅 徒歩4分 (心斎橋駅の賃貸事務所) 地下鉄堺筋線 長堀橋駅 徒歩4分 (長堀橋駅の賃貸事務所) 地下鉄長堀鶴見緑地線 長堀橋駅 徒歩5分 (長堀橋駅の賃貸事務所) |
||
| アクセス | 新大阪駅まで電車19分 大阪駅梅田駅まで電車13分 関西空港まで電車51分、車50分 伊丹空港まで車25分 高速入口:環状線長堀入口 |
||
| EV基数 | 2基 | 人荷EV基数 | - |
| 空調タイプ | 個別 | ||
| 備考 | |||
長堀通からも見える視認性のある物件。間口が広く存在感があります。エレベーターも2基あり混雑する時間もスムーズに利用できます。清掃も行き届いており、管理も良好。クリスタ長堀の入口が徒歩すぐの場所にあるので、利用すれば雨に濡れずに通勤可能です。
- お電話でお問い合わせ(無料)
-
平日13時までのお問い合わせで
当日に物件をご紹介!
お電話の場合「物件番号:A205267」
をお伝えください
