お気に入りを解除しました。
東邦第2ビル(旧第2BS)
物件番号:A205222
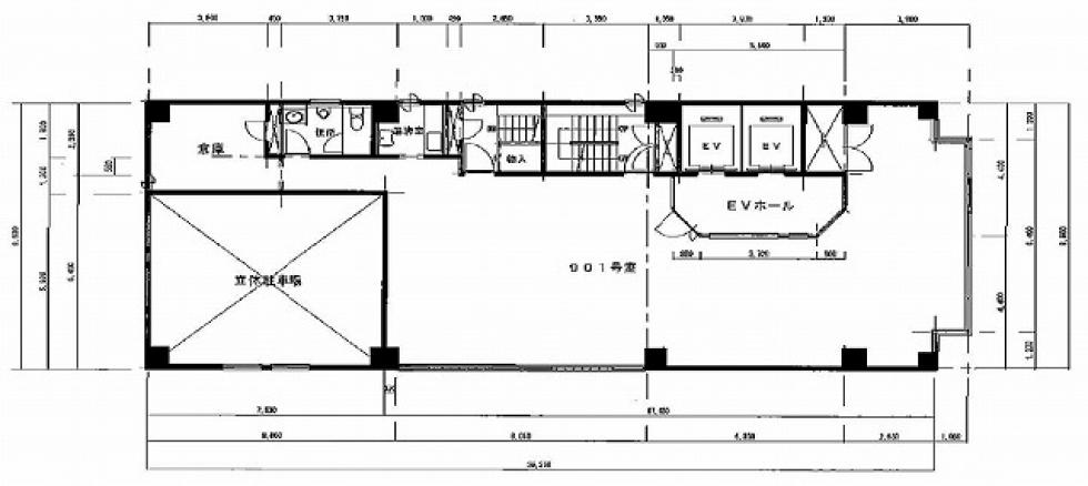
9階40.5坪

- この物件の賃料の価格帯(共益費込)
- この部屋は成約済みです
| 物件名 | 東邦第2ビル(旧第2BS) 【このビルのその他の募集階】 |
||
|---|---|---|---|
| 住所 | 大阪府大阪市中央区南船場2丁目6番3号 心斎橋・長堀橋でよく検索されるその他の物件 |
||
| 構造(規模) | 鉄骨鉄筋コンクリート造地上9階地下1階建 | ||
| 築年月 | 1988年1月1日 | ||
| 坪数 |
40.5坪 |
||
| 階数 | 9階 | ||
| 保証金 | - | ||
| 敷金 | - | ||
| 礼金 | - | ||
| 沿線 最寄駅 |
地下鉄堺筋線 長堀橋駅 徒歩2分 (長堀橋駅の賃貸事務所) 地下鉄長堀鶴見緑地線 長堀橋駅 徒歩2分 (長堀橋駅の賃貸事務所) 地下鉄御堂筋線 心斎橋駅 徒歩5分 (心斎橋駅の賃貸事務所) |
||
| アクセス | 新大阪駅まで電車18分 大阪駅梅田駅まで電車12分 関西空港まで電車50分、車50分 伊丹空港まで車25分 高速入口:環状線長堀入口 |
||
| EV基数 | 2基 | 人荷EV基数 | - |
| 空調タイプ | 個別 | ||
| 備考 | 300000 | ||

石張りの外観が特徴の正統派オフィスビル。エントランスも白を基調とし清潔感に溢れています。エレベーターも2基あり、混雑も緩和。スタートアップ企業が使いたい10坪以下から約40坪までバリエーション豊富な貸室も魅力的です。
- お電話でお問い合わせ(無料)
-
平日13時までのお問い合わせで
当日に物件をご紹介!
お電話の場合「物件番号:A205222」
をお伝えください
