お気に入りを解除しました。
堺筋ベスト
物件番号:A205170
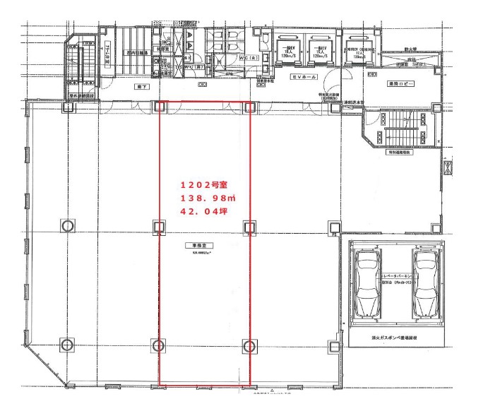
12階42.04坪

- この物件の賃料の価格帯(共益費込)
- この部屋は成約済みです
| 物件名 | 堺筋ベスト 【このビルのその他の募集階】 |
||
|---|---|---|---|
| 住所 | 大阪府大阪市中央区南船場1丁目16番13号 心斎橋・長堀橋でよく検索されるその他の物件 |
||
| 構造(規模) | 鉄骨造地上12階建 | ||
| 築年月 | 2009年9月 | ||
| 坪数 |
42.04坪 |
||
| 階数 | 12階 | ||
| 保証金 | - | ||
| 敷金 | - | ||
| 礼金 | - | ||
| 沿線 最寄駅 |
地下鉄堺筋線 長堀橋駅 徒歩2分 (長堀橋駅の賃貸事務所) 地下鉄長堀鶴見緑地線 長堀橋駅 徒歩2分 (長堀橋駅の賃貸事務所) 地下鉄長堀鶴見緑地線 松屋町駅 徒歩7分 (松屋町駅の賃貸事務所) |
||
| アクセス | 新大阪駅まで電車16分 大阪駅梅田駅まで電車10分 関西空港まで電車51分、車46分 伊丹空港まで車22分 高速入口:環状線長堀入口 |
||
| EV基数 | 2基 | 人荷EV基数 | 1基 |
| 空調タイプ | 個別 | ||
| 備考 | |||

堺筋に面したスタイリッシュなデザインのオフィスビル。エントランスも広々とられており、エレベーターも3基設置され共用部の設備も申し分ありません。立体駐車場では珍しいハイルーフ駐車可能な駐車場を完備。貸室はワンフロアは約160坪、最小区画40坪台でご提案可能です。
- お電話でお問い合わせ(無料)
-
平日13時までのお問い合わせで
当日に物件をご紹介!
お電話の場合「物件番号:A205170」
をお伝えください
