お気に入りを解除しました。
ムラキ
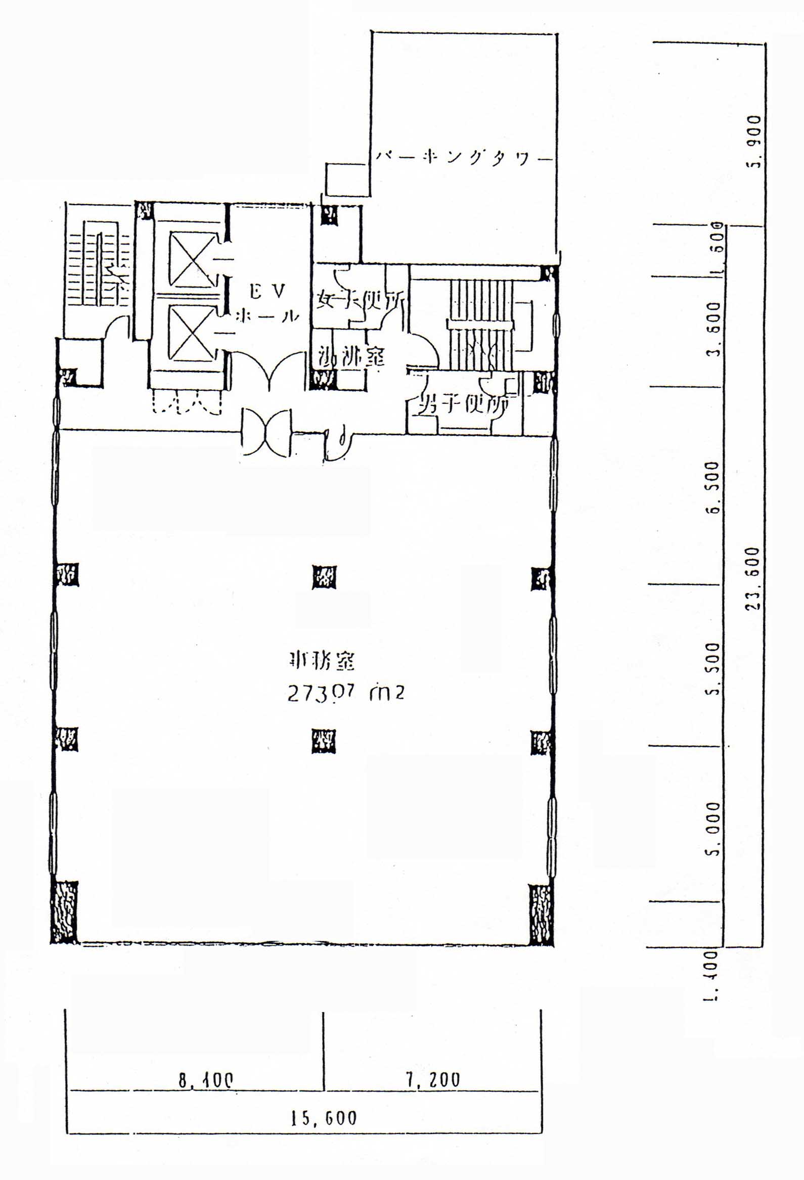
物件番号:A205160
6階82.6坪

- この物件の賃料の価格帯(共益費込)
- この部屋は成約済みです
| 物件名 | ムラキ 【このビルのその他の募集階】 |
||
|---|---|---|---|
| 住所 | 大阪府大阪市中央区南船場1丁目16番20号 心斎橋・長堀橋でよく検索されるその他の物件 |
||
| 構造(規模) | 鉄骨造(地下鉄骨鉄筋コンクリート造)地上10階地下1階建 | ||
| 築年月 | 1990年1月1日 | ||
| 坪数 |
82.6坪 |
||
| 階数 | 6階 | ||
| 保証金 | - | ||
| 敷金 | - | ||
| 礼金 | - | ||
| 沿線 最寄駅 |
地下鉄堺筋線 長堀橋駅 徒歩3分 (長堀橋駅の賃貸事務所) 地下鉄長堀鶴見緑地線 長堀橋駅 徒歩3分 (長堀橋駅の賃貸事務所) 地下鉄長堀鶴見緑地線 松屋町駅 徒歩7分 (松屋町駅の賃貸事務所) |
||
| アクセス | 新大阪駅まで電車16分 大阪駅梅田駅まで電車10分 関西空港まで電車52分、車46分 伊丹空港まで車22分 高速入口:環状線長堀入口 |
||
| EV基数 | 2基 | 人荷EV基数 | - |
| 空調タイプ | 個別 | ||
| 備考 | |||

堺筋に面する風格と存在感があるビル。玄関ポーチから丁寧にビル管理をされているのがわかります。エレベーターも2基あり、ラッシュ時の混雑も十分緩和してくれます。貸室は30坪台から1フロアの80坪までご提案可能です。
- お電話でお問い合わせ(無料)
-
平日13時までのお問い合わせで
当日に物件をご紹介!
お電話の場合「物件番号:A205160」
をお伝えください
