お気に入りを解除しました。
MMEETT (旧プレミアム長堀)
物件番号:A205107
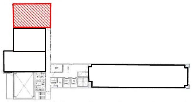
3階21.27坪
- この物件の賃料の価格帯(共益費込)
- この部屋は成約済みです
| 物件名 | MMEETT (旧プレミアム長堀) 【このビルのその他の募集階】 |
||
|---|---|---|---|
| 住所 | 大阪府大阪市中央区南船場1丁目3番9号 心斎橋・長堀橋でよく検索されるその他の物件 |
||
| 構造(規模) | 鉄骨鉄筋コンクリート造・鉄骨造地上10階建 | ||
| 築年月 | 1992年1月1日 | ||
| 坪数 |
21.27坪 |
||
| 階数 | 3階 | ||
| 保証金 | - | ||
| 敷金 | - | ||
| 礼金 | - | ||
| 沿線 最寄駅 |
地下鉄長堀鶴見緑地線 長堀橋駅 徒歩3分 (長堀橋駅の賃貸事務所) 地下鉄堺筋線 長堀橋駅 徒歩3分 (長堀橋駅の賃貸事務所) 地下鉄長堀鶴見緑地線 松屋町駅 徒歩4分 (松屋町駅の賃貸事務所) |
||
| アクセス | 新大阪駅まで電車18分 大阪駅梅田駅まで電車12分 関西空港まで電車52分、車45分 伊丹空港まで車22分 高速入口:環状線長堀入口 |
||
| EV基数 | 2基 | 人荷EV基数 | - |
| 空調タイプ | 個別 | ||
| 備考 | |||

バブルの時代に設計されたビルなので、外観や共用部も豪華に作られており、ビル前から入口までに続く長い玄関は他のビルでは見たことがありません。エントランスも広々と作っており来客にも好印象を与えます。共用部には休憩に使用できるコミュニティスペースを設置しテナント様にも喜ばれております。
- お電話でお問い合わせ(無料)
-
平日13時までのお問い合わせで
当日に物件をご紹介!
お電話の場合「物件番号:A205107」
をお伝えください

