お気に入りを解除しました。
中島
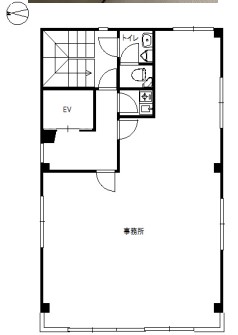
物件番号:A204206
3階20.1坪

- この物件の賃料の価格帯(共益費込)
- 相談
| 物件名 | 中島 【このビルのその他の募集階】 |
||
|---|---|---|---|
| 住所 | 大阪府大阪市中央区博労町2丁目6番4号 本町・堺筋本町・心斎橋・長堀橋でよく検索されるその他の物件 |
||
| 構造(規模) | 鉄骨鉄筋コンクリート造地上5階建 | ||
| 築年月 | 1988年11月1日 | ||
| 坪数 |
20.1坪 |
||
| 階数 | 3階 | ||
| 保証金 | (@84,900円/坪) | ||
| 敷金 | - | ||
| 礼金 | - | ||
| 沿線 最寄駅 |
地下鉄堺筋線 長堀橋駅 徒歩5分 (長堀橋駅の賃貸事務所) 地下鉄堺筋線 長堀橋駅 徒歩5分 (長堀橋駅の賃貸事務所) 地下鉄御堂筋線 心斎橋駅 徒歩6分 (心斎橋駅の賃貸事務所) |
||
| アクセス | 新大阪駅まで電車16分 大阪駅梅田駅まで電車10分 関西空港まで電車51分、車46分 伊丹空港まで車22分 高速入口:環状線長堀入口 |
||
| EV基数 | 1基 | 人荷EV基数 | - |
| 空調タイプ | 個別 | ||
| 備考 | 150000 | ||
- お電話でお問い合わせ(無料)
-
平日13時までのお問い合わせで
当日に物件をご紹介!
お電話の場合「物件番号:A204206」
をお伝えください
