お気に入りを解除しました。
大東
物件番号:A203410
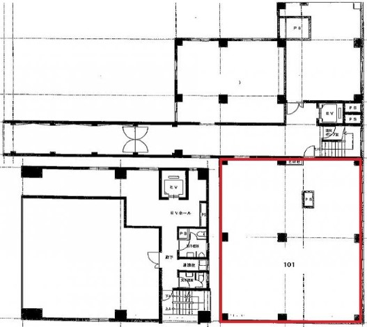
1階43.16坪

- この物件の賃料の価格帯(共益費込)
- この部屋は成約済みです
| 物件名 | 大東 【このビルのその他の募集階】 |
||
|---|---|---|---|
| 住所 | 大阪府大阪市中央区南久宝寺町4丁目4番13号 本町・堺筋本町・心斎橋・長堀橋・肥後橋・本町でよく検索されるその他の物件 |
||
| 構造(規模) | 鉄筋コンクリート造地上8階建 | ||
| 築年月 | 1966年11月1日 | ||
| 坪数 |
43.16坪 |
||
| 階数 | 1階 | ||
| 保証金 | - | ||
| 敷金 | - | ||
| 礼金 | - | ||
| 沿線 最寄駅 |
地下鉄御堂筋線 本町駅 徒歩4分 (本町駅の賃貸事務所) 地下鉄中央線 本町駅 徒歩4分 (本町駅の賃貸事務所) 地下鉄四つ橋線 本町駅 徒歩6分 (本町駅の賃貸事務所) |
||
| アクセス | 新大阪駅まで電車16分 大阪駅梅田駅まで電車10分 関西空港まで電車51分、車46分 伊丹空港まで車22分 高速入口:環状線信濃橋・阿波座・長堀 入口 |
||
| EV基数 | 1基 | 人荷EV基数 | - |
| 空調タイプ | 個別 | ||
| 備考 | 込5ヵ月 | ||

大阪メトロ御堂筋線「本町駅」徒歩4分の立地に位置するビル。築年数を感じないデザイン性が高いビルで、落ち着いた北欧調の青色が無機質な雰囲気を漂わせる近代的な外観のビルです。おしゃれ感を求めるクリエイティブな企業の方のご要望にも十分にお答えできます。
- お電話でお問い合わせ(無料)
-
平日13時までのお問い合わせで
当日に物件をご紹介!
お電話の場合「物件番号:A203410」
をお伝えください
類似物件のご紹介
本町・堺筋本町エリアの
貸し事務所、賃貸オフィス一覧を見る>>
