お気に入りを解除しました。
竹田
物件番号:A203201
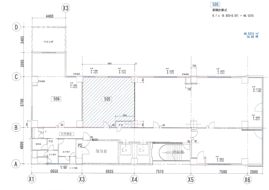
5階14.08坪

- この物件の賃料の価格帯(共益費込)
- 坪@8,001円~@12,000円
| 物件名 | 竹田 【このビルのその他の募集階】 |
||
|---|---|---|---|
| 住所 | 大阪府大阪市中央区南久宝寺町2丁目1番2号 本町・堺筋本町でよく検索されるその他の物件 |
||
| 構造(規模) | 鉄骨鉄筋コンクリート造地上10階地下1階建 | ||
| 築年月 | 1991年6月1日 | ||
| 坪数 |
14.08坪 |
||
| 階数 | 5階 | ||
| 保証金 | |||
| 敷金 | 賃料の6カ月分 | ||
| 礼金 | - | ||
| 沿線 最寄駅 |
地下鉄堺筋線 堺筋本町駅 徒歩3分 (堺筋本町駅の賃貸事務所) 地下鉄中央線 堺筋本町駅 徒歩3分 (堺筋本町駅の賃貸事務所) 地下鉄御堂筋線 本町駅 徒歩8分 (本町駅の賃貸事務所) |
||
| アクセス | 新大阪駅まで電車16分 大阪駅梅田駅まで電車10分 関西空港まで電車53分、車48分 伊丹空港まで車20分 高速入口:環状線信濃橋・阿波座・長堀 入口 |
||
| EV基数 | 3基 | 人荷EV基数 | - |
| 空調タイプ | 個別 | ||
| 備考 | |||
大阪メトロ堺筋線「堺筋本町駅」徒歩3分の立地に位置するビル。堺筋に面する管理良好なビルです。基準階面積約75坪で、貸室は75坪~5坪ほどの面積があるため、様々なニーズに合わせられます。大きな窓面が特徴的で1階にコンビニが入居しているため来客の方にも説明がしやすいビルです。
- お電話でお問い合わせ(無料)
-
平日13時までのお問い合わせで
当日に物件をご紹介!
お電話の場合「物件番号:A203201」
をお伝えください
