お気に入りを解除しました。
NPCビル本町
物件番号:A202201
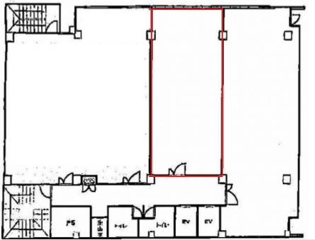
2階22.5坪

- この物件の賃料の価格帯(共益費込)
- この部屋は成約済みです
| 物件名 | NPCビル本町 【このビルのその他の募集階】 |
||
|---|---|---|---|
| 住所 | 大阪府大阪市中央区北久宝寺町2丁目1番2号 本町・堺筋本町でよく検索されるその他の物件 |
||
| 構造(規模) | 鉄骨鉄筋コンクリート造地上10階地下1階建 | ||
| 築年月 | 1977年10月1日 | ||
| 坪数 |
22.5坪 |
||
| 階数 | 2階 | ||
| 保証金 | - | ||
| 敷金 | - | ||
| 礼金 | - | ||
| 沿線 最寄駅 |
地下鉄堺筋線 堺筋本町駅 徒歩2分 (堺筋本町駅の賃貸事務所) 地下鉄中央線 堺筋本町駅 徒歩2分 (堺筋本町駅の賃貸事務所) 地下鉄堺筋線 長堀橋駅 徒歩7分 (長堀橋駅の賃貸事務所) |
||
| アクセス | 新大阪駅まで電車18分 大阪駅梅田駅まで電車12分 関西空港まで電車53分、車46分 伊丹空港まで車20分 高速入口:環状線信濃橋・阿波座・長堀 入口 |
||
| EV基数 | 2基 | 人荷EV基数 | - |
| 空調タイプ | 個別 | ||
| 備考 | |||

堺筋沿いのビルです。大通りに面しているため視認性が高いので、来客が多い方や求人効果を求めている方にはピッタリです。最寄り駅の堺筋本町駅から徒歩2分と立地的に申し分がないビルです。また、エレベーターが2基ありますので、荷物の搬出入が多い方におすすめです。
- お電話でお問い合わせ(無料)
-
平日13時までのお問い合わせで
当日に物件をご紹介!
お電話の場合「物件番号:A202201」
をお伝えください
