お気に入りを解除しました。
五味(ゴミ)
物件番号:A201221
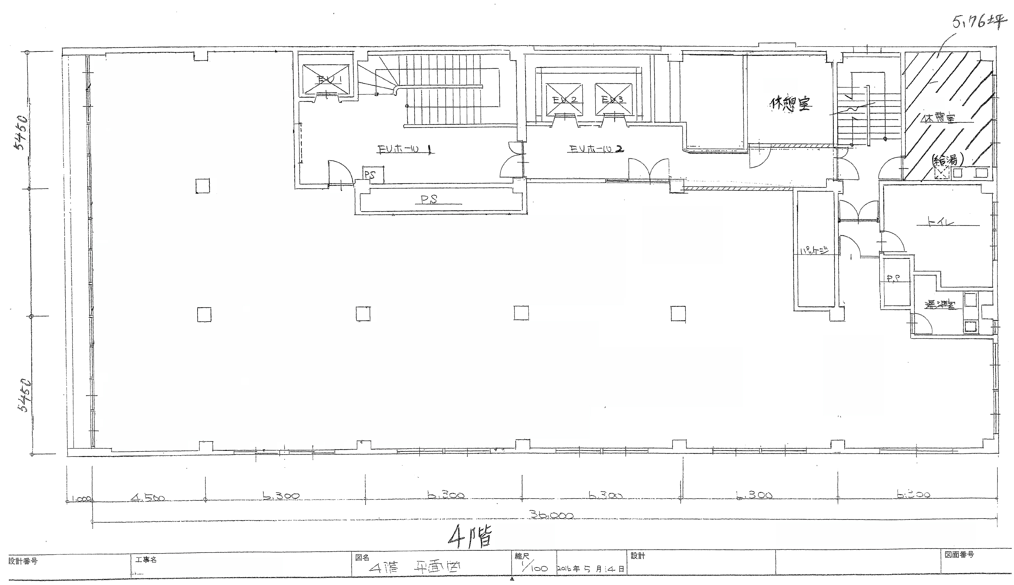
4階126.55坪

- この物件の賃料の価格帯(共益費込)
- この部屋は成約済みです
| 物件名 | 五味(ゴミ) 【このビルのその他の募集階】 |
||
|---|---|---|---|
| 住所 | 大阪府大阪市中央区久太郎町2丁目5番13号 本町・堺筋本町でよく検索されるその他の物件 |
||
| 構造(規模) | 鉄筋コンコリート造地上6階地下1階建 | ||
| 築年月 | 1959年12月 | ||
| 坪数 |
126.55坪 |
||
| 階数 | 4階 | ||
| 保証金 | - | ||
| 敷金 | - | ||
| 礼金 | - | ||
| 沿線 最寄駅 |
地下鉄堺筋線 堺筋本町駅 徒歩3分 (堺筋本町駅の賃貸事務所) 地下鉄中央線 堺筋本町駅 徒歩3分 (堺筋本町駅の賃貸事務所) 地下鉄御堂筋線 本町駅 徒歩3分 (本町駅の賃貸事務所) |
||
| アクセス | 新大阪駅まで電車15分 大阪駅梅田駅まで電車9分 関西空港まで電車50分、車45分 伊丹空港まで車20分 高速入口:環状線信濃橋・阿波座・長堀 入口 |
||
| EV基数 | 2基 | 人荷EV基数 | 1基 |
| 空調タイプ | 個別 | ||
| 備考 | |||

繊維街の中心部にあるビル。アパレルの卸業種向けでエレベーターも3基あり荷物の出し入れにも問題ありません。現在は駐大阪大韓国民総領事館が入居中ですが2023年春ごろには、ほぼ1棟貸しで募集再開予定です。
- お電話でお問い合わせ(無料)
-
平日13時までのお問い合わせで
当日に物件をご紹介!
お電話の場合「物件番号:A201221」
をお伝えください
