お気に入りを解除しました。
久太郎町恒和
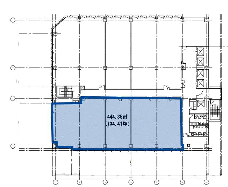
物件番号:A201214
10階134.41坪

- この物件の賃料の価格帯(共益費込)
- この部屋は成約済みです
| 物件名 | 久太郎町恒和 【このビルのその他の募集階】 |
||
|---|---|---|---|
| 住所 | 大阪府大阪市中央区久太郎町2丁目5番28号 本町・堺筋本町でよく検索されるその他の物件 |
||
| 構造(規模) | 鉄骨鉄筋コンクリート造地上12階地下3階建 | ||
| 築年月 | 1979年12月1日 | ||
| 坪数 |
134.41坪 |
||
| 階数 | 10階 | ||
| 保証金 | - | ||
| 敷金 | - | ||
| 礼金 | - | ||
| 沿線 最寄駅 |
地下鉄堺筋線 堺筋本町駅 徒歩2分 (堺筋本町駅の賃貸事務所) 地下鉄中央線 堺筋本町駅 徒歩2分 (堺筋本町駅の賃貸事務所) 地下鉄御堂筋線 本町駅 徒歩4分 (本町駅の賃貸事務所) |
||
| アクセス | 新大阪駅まで電車16分 大阪駅梅田駅まで電車10分 関西空港まで電車50分、車45分 伊丹空港まで車20分 高速入口:環状線信濃橋・阿波座・長堀 |
||
| EV基数 | 4基 | 人荷EV基数 | 1基 |
| 空調タイプ | 個別 | ||
| 備考 | |||

中央大通り沿いに面した1フロアー330坪の大型物件。2017年に大規模なリニューアルを行いビルグレードも大幅アップ。貸室は20坪台からご用意も可能で支店立ち上げなどのスタートアップに賃貸することの可能。テナント様には嬉しい喫煙スペースやリフレッシュルーム完備しています。
- お電話でお問い合わせ(無料)
-
平日13時までのお問い合わせで
当日に物件をご紹介!
お電話の場合「物件番号:A201214」
をお伝えください
