お気に入りを解除しました。
住宅金融支援機構・矢野
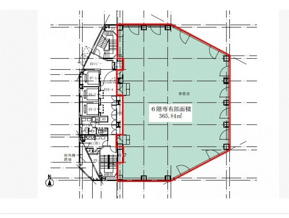
物件番号:A112409
6階109.73坪

- この物件の賃料の価格帯(共益費込)
- この部屋は成約済みです
| 物件名 | 住宅金融支援機構・矢野 【このビルのその他の募集階】 |
||
|---|---|---|---|
| 住所 | 大阪府大阪市中央区南本町4丁目5番20号 本町・堺筋本町でよく検索されるその他の物件 |
||
| 構造(規模) | 鉄骨・鉄筋コンクリート造地上14階地下3階建 | ||
| 築年月 | 1994年2月28日 | ||
| 坪数 |
109.73坪 |
||
| 階数 | 6階 | ||
| 保証金 | - | ||
| 敷金 | - | ||
| 礼金 | - | ||
| 沿線 最寄駅 |
地下鉄御堂筋線 本町駅 徒歩2分 (本町駅の賃貸事務所) 地下鉄中央線 本町駅 徒歩2分 (本町駅の賃貸事務所) 地下鉄四つ橋線 本町駅 徒歩2分 (本町駅の賃貸事務所) |
||
| アクセス | 新大阪駅まで電車16分 大阪駅梅田駅まで電車10分 関西空港まで電車49分、車41分 伊丹空港まで車20分 高速入口:環状線信濃橋・阿波座 |
||
| EV基数 | 3基 | 人荷EV基数 | - |
| 空調タイプ | 集中 | ||
| 備考 | |||

御影石を使用した重厚感のある外観。各線本町駅すぐです。角地に建っているビルですので、貸室内も明るくて解放感があります。また、重厚感はありますが、エントランスも明るさがあるので来客の方にも胸を張れるビルです。
- お電話でお問い合わせ(無料)
-
平日13時までのお問い合わせで
当日に物件をご紹介!
お電話の場合「物件番号:A112409」
をお伝えください
