お気に入りを解除しました。
創建本町
物件番号:A112203
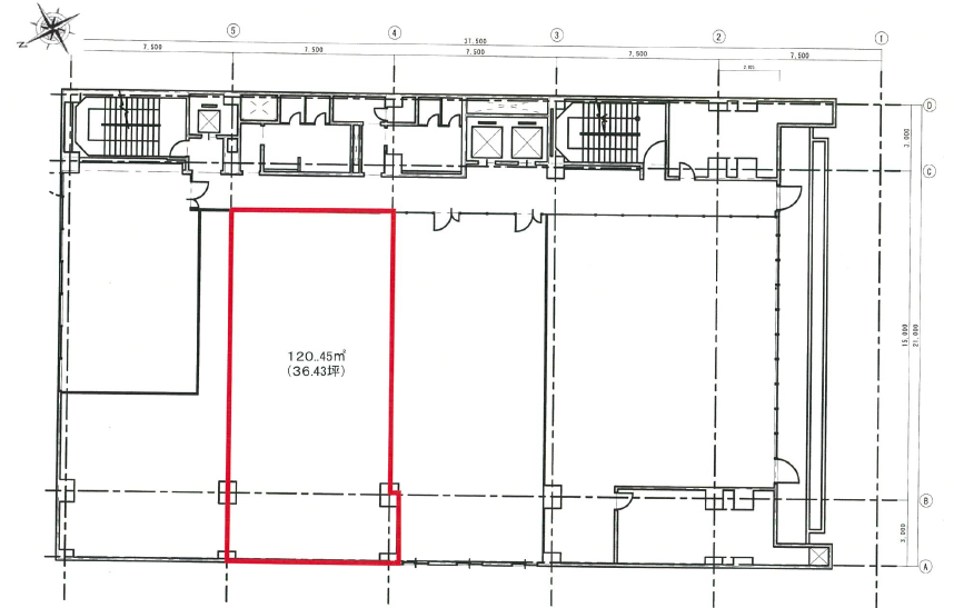
5階36.43坪

- この物件の賃料の価格帯(共益費込)
- この部屋は成約済みです
| 物件名 | 創建本町 【このビルのその他の募集階】 |
||
|---|---|---|---|
| 住所 | 大阪府大阪市中央区南本町2丁目1番8号 本町・堺筋本町でよく検索されるその他の物件 |
||
| 構造(規模) | 鉄骨鉄筋コンクリート造地上8階地下1階建 | ||
| 築年月 | 1974年10月1日 | ||
| 坪数 |
36.43坪 |
||
| 階数 | 5階 | ||
| 保証金 | - | ||
| 敷金 | - | ||
| 礼金 | - | ||
| 沿線 最寄駅 |
地下鉄堺筋線 堺筋本町駅 徒歩1分 (堺筋本町駅の賃貸事務所) 地下鉄中央線 堺筋本町駅 徒歩1分 (堺筋本町駅の賃貸事務所) 地下鉄御堂筋線 本町駅 徒歩6分 (本町駅の賃貸事務所) |
||
| アクセス | 新大阪駅まで電車18分 大阪駅梅田駅まで電車12分 関西空港まで電車50分、車47分 伊丹空港まで車20分 高速入口:環状線信濃橋・阿波座 |
||
| EV基数 | 2基 | 人荷EV基数 | 1基 |
| 空調タイプ | 個別 | ||
| 備考 | ・駅近 ・駐輪場有り |
||

大阪メトロ堺筋線・中央線「堺筋本町」駅徒歩1分の好立地。1階エントランスを広く設けており、共用部はリニューアルされて木目調のおしゃれな雰囲気に仕上がっています。1階駐車場は平面駐車場なので、大型車両も駐車可能。駐輪場も完備。築は古いのですが、元々銀行が入っていたビルなので、非常にがっちりとした建物です。
- お電話でお問い合わせ(無料)
-
平日13時までのお問い合わせで
当日に物件をご紹介!
お電話の場合「物件番号:A112203」
をお伝えください
