お気に入りを解除しました。
サンドール本町
物件番号:A111418
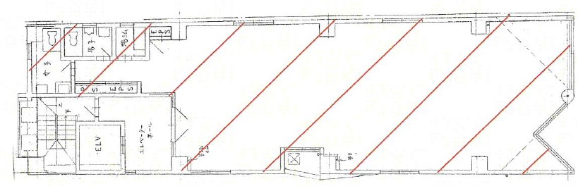
3階54.34坪

- この物件の賃料の価格帯(共益費込)
- この部屋は成約済みです
| 物件名 | サンドール本町 【このビルのその他の募集階】 |
||
|---|---|---|---|
| 住所 | 大阪府大阪市中央区本町4丁目5番7号 本町・堺筋本町でよく検索されるその他の物件 |
||
| 構造(規模) | 鉄筋コンクリート造地上9階建 | ||
| 築年月 | 1987年3月1日 | ||
| 坪数 |
54.34坪 |
||
| 階数 | 3階 | ||
| 保証金 | - | ||
| 敷金 | - | ||
| 礼金 | - | ||
| 沿線 最寄駅 |
地下鉄御堂筋線 本町駅 徒歩2分 (本町駅の賃貸事務所) 地下鉄中央線 本町駅 徒歩2分 (本町駅の賃貸事務所) 地下鉄四つ橋線 本町駅 徒歩3分 (本町駅の賃貸事務所) |
||
| アクセス | 新大阪駅まで電車19分 大阪駅梅田駅まで電車13分 関西空港まで電車48分、車50分 伊丹空港まで車25分 高速入口:環状線信濃橋・阿波座入口 |
||
| EV基数 | 1基 | 人荷EV基数 | - |
| 空調タイプ | 個別 | ||
| 備考 | |||

大阪メトロ御堂筋線「本町駅」徒歩2分、相愛高校の西側に位置するワンフロアーワンテナントビル。貸室内は明るく、清潔感があるので気持ちよく業務に取り組んで頂けます。1階部分には駐輪場が設けられていますので、自転車をご利用の方にもおすすめです。
- お電話でお問い合わせ(無料)
-
平日13時までのお問い合わせで
当日に物件をご紹介!
お電話の場合「物件番号:A111418」
をお伝えください

