お気に入りを解除しました。
野村不動産御堂筋本町(旧東芝大阪)
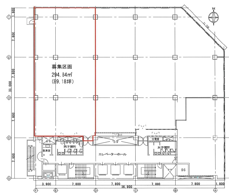
物件番号:A111403
9階89.18坪

- この物件の賃料の価格帯(共益費込)
- 相談
| 物件名 | 野村不動産御堂筋本町(旧東芝大阪) 【このビルのその他の募集階】 |
||
|---|---|---|---|
| 住所 | 大阪府大阪市中央区本町4丁目2番12号 本町・堺筋本町でよく検索されるその他の物件 |
||
| 構造(規模) | 鉄骨鉄筋コンクリート造地上9階地下4階建 | ||
| 築年月 | 1965年10月1日 | ||
| 坪数 |
89.18坪 |
||
| 階数 | 9階 | ||
| 保証金 | |||
| 敷金 | 相談 | ||
| 礼金 | - | ||
| 沿線 最寄駅 |
地下鉄御堂筋線 本町駅 徒歩1分 (本町駅の賃貸事務所) 地下鉄中央線 本町駅 徒歩2分 (本町駅の賃貸事務所) 地下鉄四つ橋線 本町駅 徒歩4分 (本町駅の賃貸事務所) |
||
| アクセス | 新大阪駅まで電車19分 大阪駅梅田駅まで電車13分 関西空港まで電車48分、車53分 伊丹空港まで車23分 高速入口:環状線信濃橋・阿波座 |
||
| EV基数 | 4基 | 人荷EV基数 | - |
| 空調タイプ | 個別 | ||
| 備考 | |||

御堂筋本町駅交差点の南西角に位置するロケーションの良いビルです。大阪ビジネス街のど真ん中ストライクにあるオフィスビルです。また、免震対策物件ですので、地震にも強く安心して頂けます。
- お電話でお問い合わせ(無料)
-
平日13時までのお問い合わせで
当日に物件をご紹介!
お電話の場合「物件番号:A111403」
をお伝えください
類似物件のご紹介
BEARE本町BLDG.(旧Hommachi bldg)
-
-
住所 大阪府大阪市中央区本町2丁目6番5号 交通 地下鉄御堂筋線 本町駅 徒歩5分
地下鉄四つ橋線 本町駅 徒歩5分
地下鉄堺筋線 堺筋本町駅 徒歩5分
竣工 1989年3月 構造 鉄骨鉄造地上8階地下1階建

