お気に入りを解除しました。
イケガミサウス(旧:本町ドリーム)
物件番号:A111305
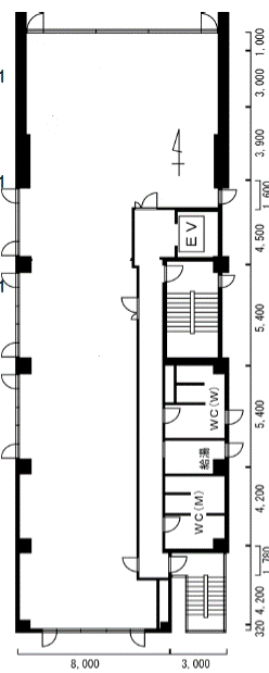
7階72.89坪

- この物件の賃料の価格帯(共益費込)
- この部屋は成約済みです
| 物件名 | イケガミサウス(旧:本町ドリーム) 【このビルのその他の募集階】 |
||
|---|---|---|---|
| 住所 | 大阪府大阪市中央区本町3丁目2番6号 本町・堺筋本町でよく検索されるその他の物件 |
||
| 構造(規模) | 鉄骨鉄筋コンクリート造地上9階地下1階建 | ||
| 築年月 | 1989年7月1日 | ||
| 坪数 |
72.89坪 |
||
| 階数 | 7階 | ||
| 保証金 | - | ||
| 敷金 | - | ||
| 礼金 | - | ||
| 沿線 最寄駅 |
地下鉄御堂筋線 本町駅 徒歩2分 (本町駅の賃貸事務所) 地下鉄堺筋線 堺筋本町駅 徒歩4分 (堺筋本町駅の賃貸事務所) 地下鉄中央線 本町駅 徒歩4分 (本町駅の賃貸事務所) |
||
| アクセス | 新大阪駅まで電車19分 大阪駅梅田駅まで電車13分 関西空港まで電車50分、車45分 伊丹空港まで車20分 高速入口:環状線信濃橋・阿波座入口 |
||
| EV基数 | 1基 | 人荷EV基数 | - |
| 空調タイプ | 個別 | ||
| 備考 | |||

大阪メトロ御堂筋線「本町駅」徒歩2分の本町通り沿い南側に位置するビル。基準階の貸室面積は約75坪、北側と南側の貸室に35坪程で2分割が可能です。北側の貸室は本町通りに面し採光性の高い点が魅力的です。また、共用部はリニューアルされ綺麗ですので居心地がいいビルです。
- お電話でお問い合わせ(無料)
-
平日13時までのお問い合わせで
当日に物件をご紹介!
お電話の場合「物件番号:A111305」
をお伝えください
