お気に入りを解除しました。
イワタニ第三(旧:大原)
物件番号:A111301
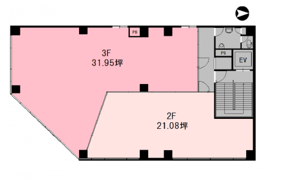
3階31.95坪

- この物件の賃料の価格帯(共益費込)
- 坪@12,001円~@15,000円
| 物件名 | イワタニ第三(旧:大原) 【このビルのその他の募集階】 |
||
|---|---|---|---|
| 住所 | 大阪府大阪市中央区本町3丁目1番2号 本町・堺筋本町でよく検索されるその他の物件 |
||
| 構造(規模) | 鉄筋コンクリート造地上5階地下1階建 | ||
| 築年月 | 1981年8月1日 | ||
| 坪数 |
31.95坪 |
||
| 階数 | 3階 | ||
| 保証金 | |||
| 敷金 | 賃料の10カ月分 | ||
| 礼金 | - | ||
| 沿線 最寄駅 |
地下鉄堺筋線 堺筋本町駅 徒歩3分 (堺筋本町駅の賃貸事務所) 地下鉄中央線 本町駅 徒歩3分 (本町駅の賃貸事務所) 地下鉄御堂筋線 本町駅 徒歩5分 (本町駅の賃貸事務所) |
||
| アクセス | 新大阪駅まで電車19分 大阪駅梅田駅まで電車13分 関西空港まで電車50分、車45分 伊丹空港まで車20分 高速入口:環状線高麗橋・信濃橋・阿波座入口 |
||
| EV基数 | 1基 | 人荷EV基数 | - |
| 空調タイプ | 個別 | ||
| 備考 | |||

本町通沿いと三休橋筋沿いの西北の角地に位置するビル。視認性が抜群で、立地の説明がしやすいビルのため、事務所だけでなく空中店舗としての用途もおすすめです。窓面が広く、広告も目立ちます。大阪メトロ御堂筋線「本町」駅と堺筋線「堺筋本町」駅の中間に位置し、アクセスの良さもおすすめポイントです。
- お電話でお問い合わせ(無料)
-
平日13時までのお問い合わせで
当日に物件をご紹介!
お電話の場合「物件番号:A111301」
をお伝えください
