お気に入りを解除しました。
本町センチュリー
物件番号:A111111
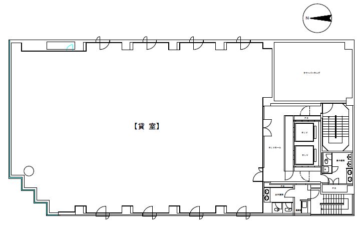
5階121.63坪

- この物件の賃料の価格帯(共益費込)
- この部屋は成約済みです
| 物件名 | 本町センチュリー 【このビルのその他の募集階】 |
||
|---|---|---|---|
| 住所 | 大阪府大阪市中央区本町1丁目7番6号 本町・堺筋本町でよく検索されるその他の物件 |
||
| 構造(規模) | 鉄骨鉄筋コンクリート造地上10階地下1階建 | ||
| 築年月 | 1989年6月1日 | ||
| 坪数 |
121.63坪 |
||
| 階数 | 5階 | ||
| 保証金 | - | ||
| 敷金 | - | ||
| 礼金 | - | ||
| 沿線 最寄駅 |
地下鉄堺筋線 堺筋本町駅 徒歩1分 (堺筋本町駅の賃貸事務所) 地下鉄中央線 堺筋本町駅 徒歩2分 (堺筋本町駅の賃貸事務所) 地下鉄御堂筋線 本町駅 徒歩6分 (本町駅の賃貸事務所) |
||
| アクセス | 新大阪駅まで電車19分 大阪駅梅田駅まで電車13分 関西空港まで電車51分、車48分 伊丹空港まで車20分 高速入口:環状線高麗橋・信濃橋・阿波座 |
||
| EV基数 | 2基 | 人荷EV基数 | - |
| 空調タイプ | 個別 | ||
| 備考 | |||

大阪メトロ堺筋線・中央線、それぞれ「本町駅」から徒歩1分、出入口のすぐ前でアクセス至便な大型ハイグレートオフィスビルです。堺筋と本町通の興産店角に位置し、視認性も良好です。周辺には金融機関や飲食店が揃い、拠点として便利な立地です。
- お電話でお問い合わせ(無料)
-
平日13時までのお問い合わせで
当日に物件をご紹介!
お電話の場合「物件番号:A111111」
をお伝えください
