お気に入りを解除しました。
トヤマ本館
物件番号:A110120
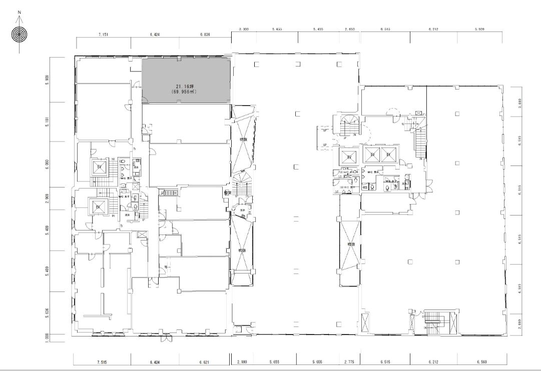
8階21.53坪
- この物件の賃料の価格帯(共益費込)
- この部屋は成約済みです
| 物件名 | トヤマ本館 【このビルのその他の募集階】 |
||
|---|---|---|---|
| 住所 | 大阪府大阪市中央区安土町1丁目7番13号 本町・堺筋本町でよく検索されるその他の物件 |
||
| 構造(規模) | 鉄筋コンクリート造地上9階地下1階建 | ||
| 築年月 | 1953年1月1日 | ||
| 坪数 |
21.53坪 |
||
| 階数 | 8階 | ||
| 保証金 | - | ||
| 敷金 | - | ||
| 礼金 | - | ||
| 沿線 最寄駅 |
地下鉄堺筋線 堺筋本町駅 徒歩1分 (堺筋本町駅の賃貸事務所) 地下鉄中央線 堺筋本町駅 徒歩3分 (堺筋本町駅の賃貸事務所) 地下鉄御堂筋線 本町駅 徒歩7分 (本町駅の賃貸事務所) |
||
| アクセス | 新大阪駅まで電車18分 大阪駅梅田駅まで電車12分 関西空港まで電車51分、車50分 伊丹空港まで車20分 高速入口:環状線高麗橋・信濃橋入口 |
||
| EV基数 | 2基 | 人荷EV基数 | - |
| 空調タイプ | 個別 | ||
| 備考 | 天高2.6m~3.0m | ||

堺筋沿いのレトロなシンボリックビル。竣工は昭和28年と古い建物ですが、造りがしっかりしているため数多くの災害にもビクともしないビルです。また、管理もしっかりされています。立地は堺筋沿いに面しており、堺筋本町駅の12番出口から徒歩1分、視認性もあり利便性は申し分ないです。
- お電話でお問い合わせ(無料)
-
平日13時までのお問い合わせで
当日に物件をご紹介!
お電話の場合「物件番号:A110120」
をお伝えください
