お気に入りを解除しました。
モレスコ本町
物件番号:A109324
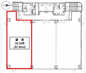
4階28.1坪

- この物件の賃料の価格帯(共益費込)
- この部屋は成約済みです
| 物件名 | モレスコ本町 【このビルのその他の募集階】 |
||
|---|---|---|---|
| 住所 | 大阪府大阪市中央区備後町3丁目2番15号 本町・堺筋本町でよく検索されるその他の物件 |
||
| 構造(規模) | 鉄骨造地上8階建 | ||
| 築年月 | 2001年10月31日 | ||
| 坪数 |
28.1坪 |
||
| 階数 | 4階 | ||
| 保証金 | - | ||
| 敷金 | - | ||
| 礼金 | - | ||
| 沿線 最寄駅 |
地下鉄御堂筋線 本町駅 徒歩4分 (本町駅の賃貸事務所) 地下鉄堺筋線 堺筋本町駅 徒歩5分 (堺筋本町駅の賃貸事務所) 地下鉄中央線 本町駅 徒歩6分 (本町駅の賃貸事務所) |
||
| アクセス | 新大阪駅まで電車14分 大阪駅梅田駅まで電車8分 関西空港まで電車51分、車50分 伊丹空港まで車21分 高速入口:環状線信濃橋・阿波座入口 |
||
| EV基数 | 2基 | 人荷EV基数 | - |
| 空調タイプ | 個別 | ||
| 備考 | ・新耐震基準適合 ・天井高2,600mm |
||

三休橋筋に面すガラス張りのオフィスです。1階にはサンマルクカフェが入居中。天井高さは50㎜のOA床上から2600㎜あり、開放感があります。所有者は一部上場企業の株式会社MORESCO様で、自社の大阪支社としてご使用されています。
- お電話でお問い合わせ(無料)
-
平日13時までのお問い合わせで
当日に物件をご紹介!
お電話の場合「物件番号:A109324」
をお伝えください
