お気に入りを解除しました。
森田ビルディング
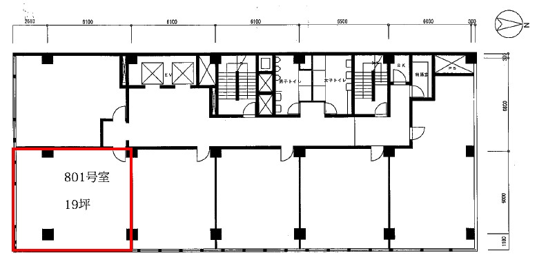
物件番号:A109203
8階19坪

- この物件の賃料の価格帯(共益費込)
- この部屋は成約済みです
| 物件名 | 森田ビルディング 【このビルのその他の募集階】 |
||
|---|---|---|---|
| 住所 | 大阪府大阪市中央区備後町2丁目4番6号 本町・堺筋本町でよく検索されるその他の物件 |
||
| 構造(規模) | 鉄骨鉄筋コンクリート造地上9階地下3階建 | ||
| 築年月 | 1962年1月1日 | ||
| 坪数 |
19坪 |
||
| 階数 | 8階 | ||
| 保証金 | - | ||
| 敷金 | - | ||
| 礼金 | - | ||
| 沿線 最寄駅 |
地下鉄堺筋線 堺筋本町駅 徒歩3分 (堺筋本町駅の賃貸事務所) 地下鉄中央線 堺筋本町駅 徒歩5分 (堺筋本町駅の賃貸事務所) 地下鉄御堂筋線 本町駅 徒歩6分 (本町駅の賃貸事務所) |
||
| アクセス | 新大阪駅まで電車17分 大阪駅梅田駅まで電車11分 関西空港まで電車52分、車52分 伊丹空港まで車25分 高速入口:環状線高麗橋・信濃橋・阿波座入口 |
||
| EV基数 | 2基 | 人荷EV基数 | - |
| 空調タイプ | 個別 | ||
| 備考 | ・角ビル ・デザイナーズ ・天井高2500mm ・駐輪場 ・2008年エントランス、共用部リニューアル ・9階に茶室 |
||

文化勲章受賞した名建築家村野藤吾氏の設計による、趣のあるのオフィスビルです。9階には茶室、地下3階には頑丈な書庫があり、歴史を感じさせる空間もありつつ、現代のオフィス需要に必要なセキュリティ、通信関係の設備を整え、快適なオフィス環境となっています。重厚感のある外観とリニューアルされたモダンな共用部がベストマッチ。御堂筋と堺筋に挟まれたフットワークの軽い立地も魅力。また、大型化する車両に対応できる地下自走式平面駐車場もあります。
- お電話でお問い合わせ(無料)
-
平日13時までのお問い合わせで
当日に物件をご紹介!
お電話の場合「物件番号:A109203」
をお伝えください

