お気に入りを解除しました。
瓦町(旧キューアス瓦町)
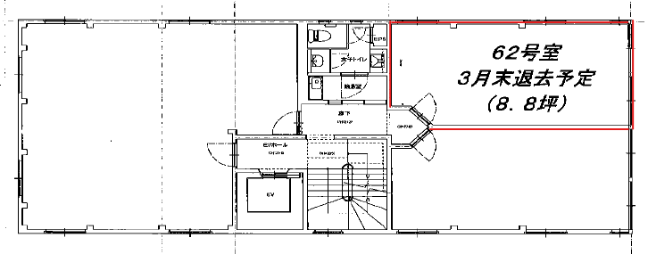
物件番号:A108305
6階8.8坪

- この物件の賃料の価格帯(共益費込)
- この部屋は成約済みです
| 物件名 | 瓦町(旧キューアス瓦町) 【このビルのその他の募集階】 |
||
|---|---|---|---|
| 住所 | 大阪府大阪市中央区瓦町3丁目2番16号 淀屋橋・北浜・本町・堺筋本町でよく検索されるその他の物件 |
||
| 構造(規模) | 鉄骨造地上7階建 | ||
| 築年月 | 1957年1月1日 | ||
| 坪数 |
8.8坪 |
||
| 階数 | 6階 | ||
| 保証金 | - | ||
| 敷金 | - | ||
| 礼金 | - | ||
| 沿線 最寄駅 |
地下鉄御堂筋線 本町駅 徒歩4分 (本町駅の賃貸事務所) 地下鉄堺筋線 堺筋本町駅 徒歩4分 (堺筋本町駅の賃貸事務所) 地下鉄中央線 堺筋本町駅 徒歩6分 (堺筋本町駅の賃貸事務所) |
||
| アクセス | 新大阪駅まで電車17分 大阪駅梅田駅まで電車10分 関西空港まで電車55分、車48分 伊丹空港まで車21分 高速入口:環状線高麗橋・信濃橋・阿波座入口 |
||
| EV基数 | 1基 | 人荷EV基数 | - |
| 空調タイプ | 個別 | ||
| 備考 | ・天井高3m | ||
- お電話でお問い合わせ(無料)
-
平日13時までのお問い合わせで
当日に物件をご紹介!
お電話の場合「物件番号:A108305」
をお伝えください
