お気に入りを解除しました。
盛佳
物件番号:A108106
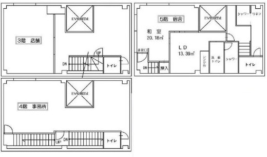
3階+4階+5階59.65坪

- この物件の賃料の価格帯(共益費込)
- この部屋は成約済みです
| 物件名 | 盛佳 【このビルのその他の募集階】 |
||
|---|---|---|---|
| 住所 | 大阪府大阪市中央区瓦町1丁目4番1号 淀屋橋・北浜・本町・堺筋本町でよく検索されるその他の物件 |
||
| 構造(規模) | 鉄筋コンクリート造地下1階地上5階建 | ||
| 築年月 | 1963年4月 | ||
| 坪数 |
59.65坪 |
||
| 階数 | 3階+4階+5階 | ||
| 保証金 | - | ||
| 敷金 | - | ||
| 礼金 | - | ||
| 沿線 最寄駅 |
地下鉄堺筋線 堺筋本町駅 徒歩3分 (堺筋本町駅の賃貸事務所) 地下鉄中央線 堺筋本町駅 徒歩4分 (堺筋本町駅の賃貸事務所) 地下鉄堺筋線 北浜駅 徒歩6分 (北浜駅の賃貸事務所) |
||
| アクセス | 新大阪駅まで電車19分 大阪駅梅田駅まで電車13分 関西空港まで電車53分、車50分 伊丹空港まで車19分 高速入口:環状線高麗橋入口 |
||
| EV基数 | 1基 | 人荷EV基数 | - |
| 空調タイプ | 個別 | ||
| 備考 | ・ワンフロアワンテナント | ||

ワンフロアワンテナントのレトロビル。エレベーターはありませんが、賃料はお安い提案ができます。店舗使用もご相談ください。
- お電話でお問い合わせ(無料)
-
平日13時までのお問い合わせで
当日に物件をご紹介!
お電話の場合「物件番号:A108106」
をお伝えください
