お気に入りを解除しました。
井上
物件番号:A107219
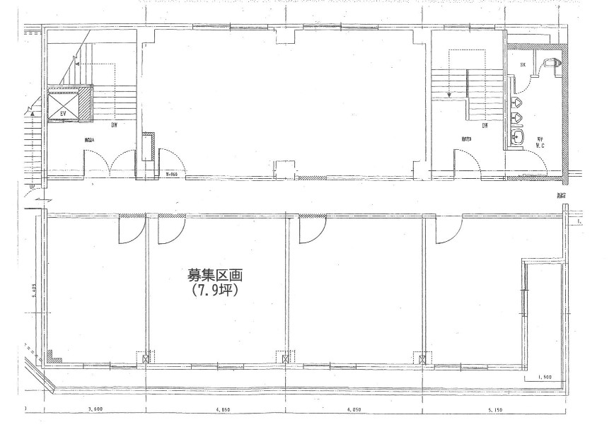
5階7.9坪

- この物件の賃料の価格帯(共益費込)
- この部屋は成約済みです
| 物件名 | 井上 【このビルのその他の募集階】 |
||
|---|---|---|---|
| 住所 | 大阪府大阪市中央区淡路町2丁目6番5号 淀屋橋・北浜・本町・堺筋本町でよく検索されるその他の物件 |
||
| 構造(規模) | 鉄筋コンクリート造地上5階地下1階建 | ||
| 築年月 | 1958年4月1日 | ||
| 坪数 |
7.9坪 |
||
| 階数 | 5階 | ||
| 保証金 | - | ||
| 敷金 | - | ||
| 礼金 | - | ||
| 沿線 最寄駅 |
地下鉄堺筋線 堺筋本町駅 徒歩5分 (堺筋本町駅の賃貸事務所) 地下鉄中央線 堺筋本町駅 徒歩5分 (堺筋本町駅の賃貸事務所) 地下鉄御堂筋線 本町駅 徒歩6分 (本町駅の賃貸事務所) |
||
| アクセス | 新大阪駅まで電車18分 大阪駅梅田駅まで電車13分 関西空港まで電車55分、車52分 伊丹空港まで車20分 高速入口:環状線高麗橋入口 |
||
| EV基数 | 1基 | 人荷EV基数 | - |
| 空調タイプ | 個別 | ||
| 備考 | ・角ビル ・2017年共用部リニューアル済み ・天井高2.6m ・駐輪場有り |
||

三休橋筋に面す角ビル。共用部をフルリノベーションし、温かみのあるおしゃれな雰囲気に仕上がっております。三休橋筋側の貸室は明るく、天井の高さも2600mmありますので開放感があります。5坪、6坪の貸室もあり、コンパクトな坪数でこのクオリティはなかなか希少な物件です。
- お電話でお問い合わせ(無料)
-
平日13時までのお問い合わせで
当日に物件をご紹介!
お電話の場合「物件番号:A107219」
をお伝えください

