お気に入りを解除しました。
オーセンティック淀屋橋
物件番号:A106307
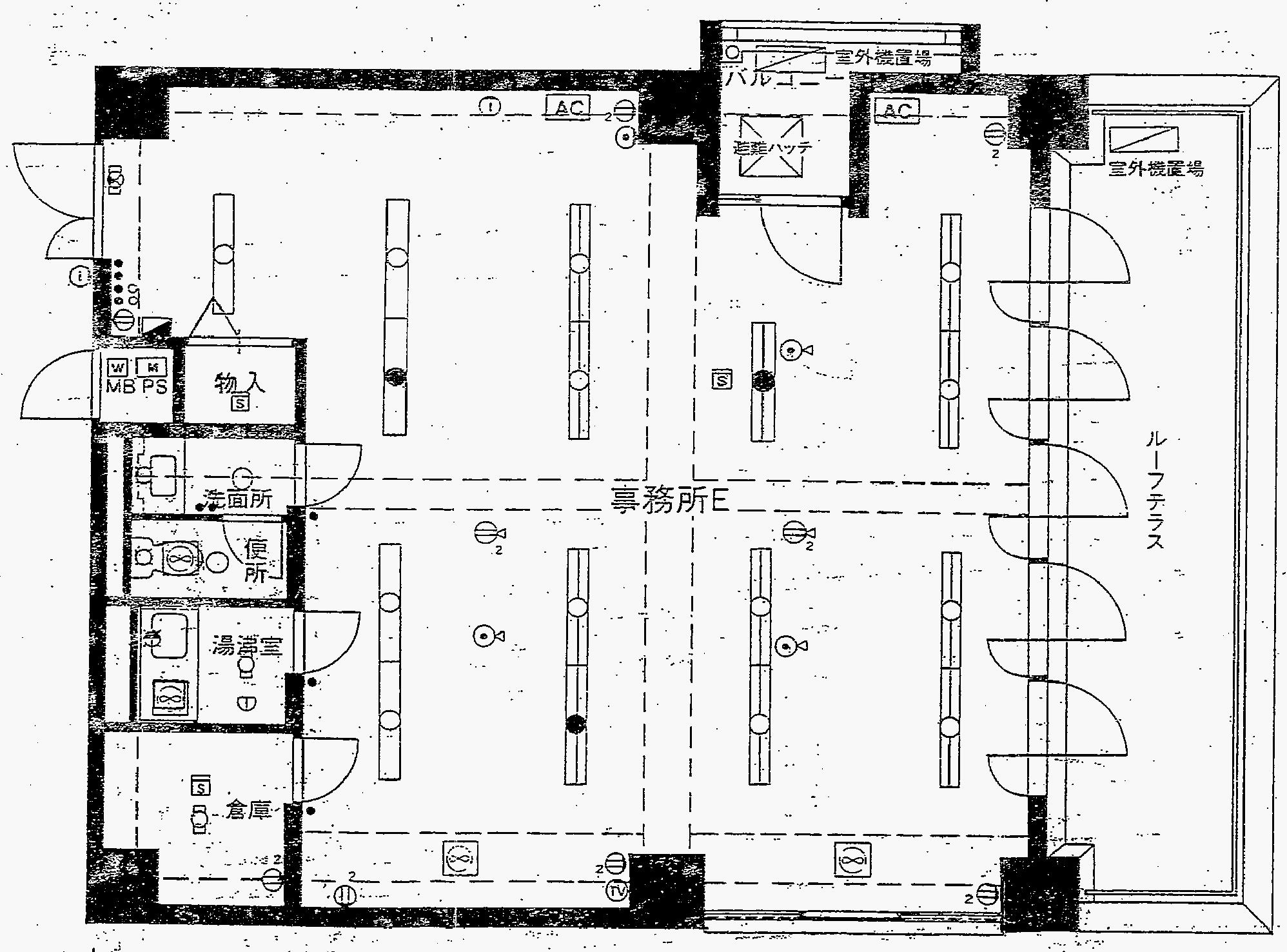
11階24.41坪

- この物件の賃料の価格帯(共益費込)
- この部屋は成約済みです
| 物件名 | オーセンティック淀屋橋 【このビルのその他の募集階】 |
||
|---|---|---|---|
| 住所 | 大阪府大阪市中央区平野町3丁目1番10号 淀屋橋・北浜でよく検索されるその他の物件 |
||
| 構造(規模) | 鉄骨鉄筋コンクリート造地上11階地下1階建 | ||
| 築年月 | 1986年7月1日 | ||
| 坪数 |
24.41坪 |
||
| 階数 | 11階 | ||
| 保証金 | - | ||
| 敷金 | - | ||
| 礼金 | - | ||
| 沿線 最寄駅 |
地下鉄御堂筋線 淀屋橋駅 徒歩5分 (淀屋橋駅の賃貸事務所) 地下鉄堺筋線 北浜駅 徒歩6分 (北浜駅の賃貸事務所) 京阪線(本線・中之島線) 北浜駅 徒歩8分 (北浜駅の賃貸事務所) |
||
| アクセス | 新大阪駅まで電車14分 大阪駅梅田駅まで電車8分 関西空港まで電車56分、車51分 伊丹空港まで車22分 高速入口:環状線高麗橋入口 |
||
| EV基数 | 1基 | 人荷EV基数 | - |
| 空調タイプ | 個別 | ||
| 備考 | ・新耐震基準適合 ・ガラスウォール |
||

周辺では珍しい、分譲のオフィスビル。分譲ならではの各貸室ごとに雰囲気が違うので自由度が高い物件をお探しの方にオススメです。
- お電話でお問い合わせ(無料)
-
平日13時までのお問い合わせで
当日に物件をご紹介!
お電話の場合「物件番号:A106307」
をお伝えください

